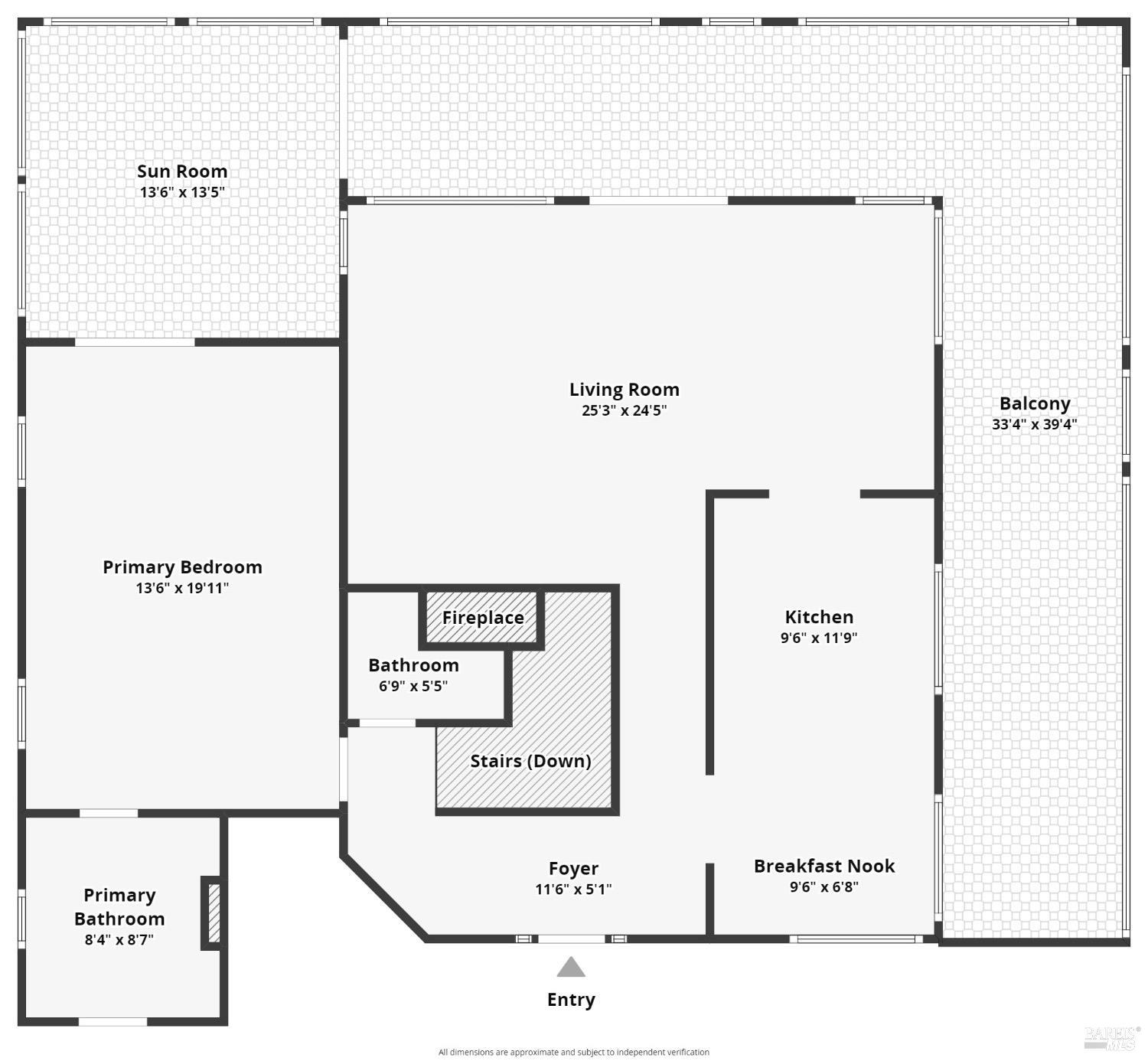
Quintessential Lakefront Estate situated on nearly 1 acre (spanning 2 parcels) with a Private Peninsula, Incredible Outdoor Entertaining Space including a Pool & Spa, Boat house, Private Dock + Pontoon Boat, Bocce Court, Children's Playhouse and so much more! This 3 bed (+ 2 bonus rooms) 3.5 bath home has 2,524 SF of living space located in the thriving community of Hidden Valley Lake, just 20 miles north of Calistoga. Expansive lake and hillside views can be enjoyed upon entering the home. Timeless character throughout including gorgeous hardwood flooring, crown molding, custom window coverings, recessed lighting, tray ceilings and surround sound speakers. The galley style kitchen has an abundance of storage, a propane range and 2 dining options in the breakfast nook or formal dining area just off the kitchen. The Living room offers a stately wood burning fireplace, built-in bookshelves & access to the covered wrap around deck. The primary suite found on the main level has an expansive walk-in closet and outstanding views with bright light + an adjoining sunroom to relax in a peaceful setting. The ensuite bathroom offers double sink vanity, built-in storage unit and an extra large walk-in steam shower. 1/2 bath with pedestal sink on the main level.
MLS #
BA325029738
MLS Source
Bay Area Real Estate Information Services, Inc.
Bedrooms
Primary Suite/Retreat
Bathrooms
Shower(s) over Tub(s)
Kitchen
Breakfast Nook, Other
Appliances
Built-in BBQ Grill, Dishwasher, Garbage Disposal, Microwave, Other, Oven - Built-In, Oven - Gas, Oven Range - Gas, Refrigerator, Dryer, Washer
Dining Room
Breakfast Nook, Dining Area in Family Room, Formal Area, In Kitchen, Other
Family Room
Deck Attached, Other
Flooring
Carpet, Tile, Vinyl, Wood
Laundry
220 Volt Outlet, Cabinets, In Laundry Room, Laundry - Yes
Cooling
Ceiling Fan, Central Forced Air
Heating
Central Forced Air, Fireplace
Roof
Composition, Shingle
Pool
Community Facility, Heated - Gas, In Ground, Pool - Yes, Spa/Hot Tub
Garage/Parking
Boat Dock, Facing Side, Garage: 2 Car(s)
Sewer
Public Sewer
Water
Public
HOA Fee
$545
HOA Fee Frequency
Monthly
Complex Amenities
Barbecue Area, Beach Rights, Community Pool, Dog Park, Golf Course, Park, Playground, Putting Green
| # Buildings | # Leased Units | # Total Units |
|---|---|---|
| 0 | – | – |
18520 Lakeridge Cir is a Single Family Residence in Hidden Valley Lake, CA 95467. This 2,524 square foot property sits on a 0.96 Acres Lot and features 3 bedrooms & 3 full and 1 partial bathrooms. It is currently priced at $1,000,000 and was built in 1994. This address can also be written as 18520 Lakeridge Cir, Hidden Valley Lake, CA 95467.
©2025 Bay Area Real Estate Information Services, Inc. All rights reserved. All data, including all measurements and calculations of area, is obtained from various sources and has not been, and will not be, verified by broker or MLS. All information should be independently reviewed and verified for accuracy. Properties may or may not be listed by the office/agent presenting the information. Information provided is for personal, non-commercial use by the viewer and may not be redistributed without explicit authorization from Bay Area Real Estate Information Services, Inc.
Presently MLSListings.com displays Active, Contingent, Pending, and Recently Sold listings. Recently Sold listings are properties which were sold within the last three years. After that period listings are no longer displayed in MLSListings.com. Pending listings are properties under contract and no longer available for sale. Contingent listings are properties where there is an accepted offer, and seller may be seeking back-up offers. Active listings are available for sale.
This listing information is up-to-date as of December 06, 2025. For the most current information, please contact Faylen Silva, (707) 295-8088