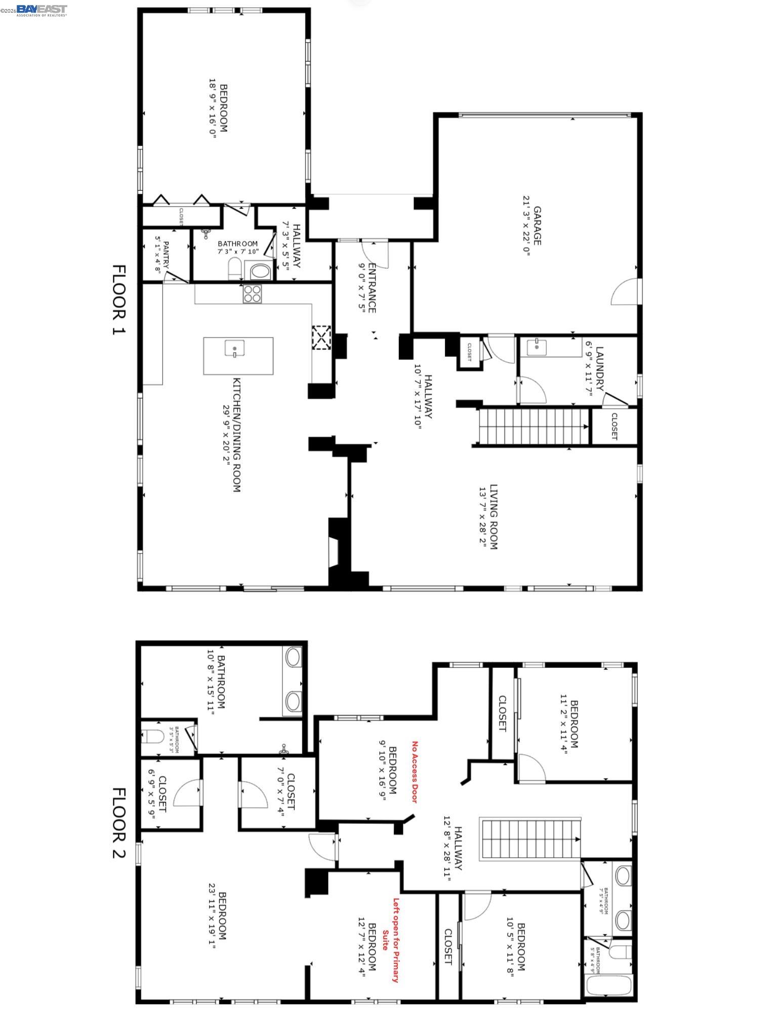
Welcome, this bright/spacious 2-story Shea Home located in Patterson Gardens community. Offering approx. 3,499 sq. ft. of thoughtfully designed living space, this grand floor plan blends comfort, functionality & style. The main level welcomes you with an abundance of natural light, featuring formal living & dining areas. A generously sized bedroom & full bath downstairs. The great room showcases a cozy gas fireplace, recessed lighting & seamless access to the backyard. The adjacent kitchen is designed for both everyday living & entertaining, complete with granite tile countertops, ample cabinetry, gas cooktop, a spacious walk-in pantry & a large center island with sink. Upstairs, versatility defines the layout. County tax records reflect 6-bedrooms; however, this home has been thoughtfully enhanced as 1-bedroom was seamlessly integrated to create an expanded primary retreat featuring dual walk-in closets & a stand-alone soaking tub. An additional bedroom has been opened to create a flexible “open concept” space. New carpet & fresh interior paint throughout. Additional highlights include dual-zone A/C for year-round comfort. Step outside to a private backyard featuring a stamped concrete patio & lawn area perfect for relaxing or entertaining.
MLS #
BE41127495
MLS Source
Bay East
Days on Site
13
Bathrooms
Primary - Shower(s) over Tub(s), Primary - Updated Bath(s)
Kitchen
Breakfast Bar, Countertop - Stone, Countertop - Tile, Hookups - Ice Maker, Island, Pantry, Updated
Appliances
Dishwasher, Garbage Disposal, Microwave, Oven - Built-In, Oven Range - Gas
Dining Room
Dining Area, Formal Dining Room
Family Room
Separate Family Room
Fireplace
Family Room, Gas Burning
Flooring
Carpet - Wall to Wall, Tile
Laundry
220 Volt Outlet, Hookups Only, In Laundry Room
Cooling
Central -1 Zone
Heating
Heating - 2+ Zones
Roof
Tile
Foundation
Slab
Pool
None, Pool - No
Style
Contemporary
Garage/Parking
Attached Garage, Enclosed, Garage, Gate/Door Opener, Garage: 2 Car(s)
Sewer
Public Sewer
Water
Public
204 Daylily Ln is a Single Family Residence in Patterson, CA 95363. This 3,499 square foot property sits on a 6,600 Sq Ft Lot and features 6 bedrooms & 3 full bathrooms. It is currently priced at $589,888 and was built in 2005. This address can also be written as 204 Daylily Ln, Patterson, CA 95363.
©2026 Bay East. All rights reserved. All data, including all measurements and calculations of area, is obtained from various sources and has not been, and will not be, verified by broker or MLS. All information should be independently reviewed and verified for accuracy. Properties may or may not be listed by the office/agent presenting the information. Information provided is for personal, non-commercial use by the viewer and may not be redistributed without explicit authorization from Bay East.
Presently MLSListings.com displays Active, Contingent, Pending, and Recently Sold listings. Recently Sold listings are properties which were sold within the last three years. After that period listings are no longer displayed in MLSListings.com. Pending listings are properties under contract and no longer available for sale. Contingent listings are properties where there is an accepted offer, and seller may be seeking back-up offers. Active listings are available for sale.
This listing information is up-to-date as of March 29, 2026. For the most current information, please contact Melrose Forde, (510) 676-4566