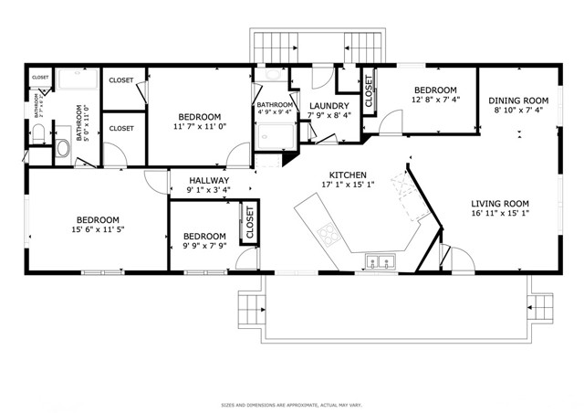
Welcome to this beautifully upgraded 4-bedroom, 2-bath home offering approximately 1,440 sq ft, located in the desirable gated family community, Upland Meadows. Built in 1978, this home has been thoughtfully updated and is situated directly on the greenbelt, providing a peaceful setting with added privacy. The interior features a stunning upgraded kitchen with granite countertops, ample cabinetry, and an open flow into the dedicated dining area, perfect for everyday living and entertaining. Laminate flooring and shutters runs throughout the main living areas, complemented by custom interior paint that gives the home a modern, move-in-ready feel. The spacious primary bedroom offers plenty of storage and an on suite bathroom which includes a walk-in shower, and the home offers a separate indoor laundry area for convenience. Spacious covered carport parking which has room for three standard size vehicles. Community amenities include a Fully equipped club house with three pool-tables, sparkling pool, community spa, and a playground, plenty of guest parking - making this an ideal location (it diagonally right across the street from pool) for families of all ages. The gated community provides an added sense of security and pride of ownership. Located in the heart of Upland, r
MLS #
CRCV25281318
MLS Source
California Regional MLS
Days on Site
1
Appliances
Other
Laundry
Other
Cooling
Central Forced Air
Heating
Central Forced Air
Pool
Community Facility, In Ground
Garage/Parking
Garage: 0 Car(s)
Elementary District
Upland Unified
High School District
Upland Unified
Unit Levels
One
HOA Fee
$0
929 E Foothill 53 is a Manufactured In Park in Upland, CA 91786. This 1,440 square foot property sits on a 1,440 Sq Ft Lot and features 4 bedrooms & 2 full bathrooms. It is currently priced at $214,000 and was built in 1978. This address can also be written as 929 E Foothill #53, Upland, CA 91786.
©2026 California Regional MLS. All rights reserved. All data, including all measurements and calculations of area, is obtained from various sources and has not been, and will not be, verified by broker or MLS. All information should be independently reviewed and verified for accuracy. Properties may or may not be listed by the office/agent presenting the information. Information provided is for personal, non-commercial use by the viewer and may not be redistributed without explicit authorization from California Regional MLS.
Presently MLSListings.com displays Active, Contingent, Pending, and Recently Sold listings. Recently Sold listings are properties which were sold within the last three years. After that period listings are no longer displayed in MLSListings.com. Pending listings are properties under contract and no longer available for sale. Contingent listings are properties where there is an accepted offer, and seller may be seeking back-up offers. Active listings are available for sale.
This listing information is up-to-date as of February 02, 2026. For the most current information, please contact Lori Alvarez, (909) 551-3144