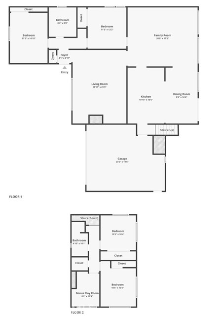
This inviting 5-bedroom, 2-bath home sits in a highly desirable area of North San Bernardino and greets you with outstanding curb appeal that sets the tone for the entire property. On the main level, you’ll find two well-sized bedrooms, a large family room perfect for movie nights and gatherings, and an oversized den that offers flexible living space ideal as a home office, playroom, or media area. The heart of the home is the expansive, upgraded kitchen, which features abundant granite countertops and abundant cabinetry, providing ample storage and workspace for the chef in the family; it overlooks a generous dining area that makes entertaining seamless and effortless. Upstairs, you’ll discover a private living area consisting of three bedrooms and a full bathroom, offering a quiet retreat for guests, teens, or multi-generational living, with a separate zone that can be used for living, study, or recreation. The outdoor space is meticulously maintained and perfectly sized for ease of care, leaving you more time to enjoy the serenity of the koi pond an tranquil feature that adds a peaceful focal point to mornings and evenings alike. This home blends practical design with modern upgrades, providing flexible spaces for work, play, and daily living, all within a convenient location
MLS #
CRIV25245376
MLS Source
California Regional MLS
Fireplace
Den, Living Room, Wood Stove
Laundry
In Garage
Cooling
Other
Heating
Central Forced Air
Pool
None
Garage/Parking
Garage: 2 Car(s)
Elementary District
San Bernardino City Unified
High School District
San Bernardino City Unified
HOA Fee
$0
245 E Edgemont is a Single Family Residence in San Bernardino, CA 92404. This 2,038 square foot property sits on a 6,968 Sq Ft Lot and features 5 bedrooms & 2 full bathrooms. It is currently priced at $560,000 and was built in 1952. This address can also be written as 245 E Edgemont, San Bernardino, CA 92404.
©2025 California Regional MLS. All rights reserved. All data, including all measurements and calculations of area, is obtained from various sources and has not been, and will not be, verified by broker or MLS. All information should be independently reviewed and verified for accuracy. Properties may or may not be listed by the office/agent presenting the information. Information provided is for personal, non-commercial use by the viewer and may not be redistributed without explicit authorization from California Regional MLS.
Presently MLSListings.com displays Active, Contingent, Pending, and Recently Sold listings. Recently Sold listings are properties which were sold within the last three years. After that period listings are no longer displayed in MLSListings.com. Pending listings are properties under contract and no longer available for sale. Contingent listings are properties where there is an accepted offer, and seller may be seeking back-up offers. Active listings are available for sale.
This listing information is up-to-date as of December 20, 2025. For the most current information, please contact PEDRO MOLINA