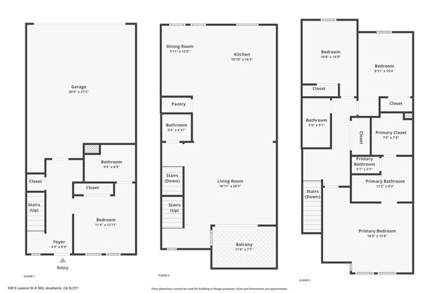
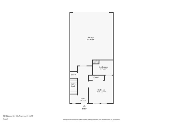
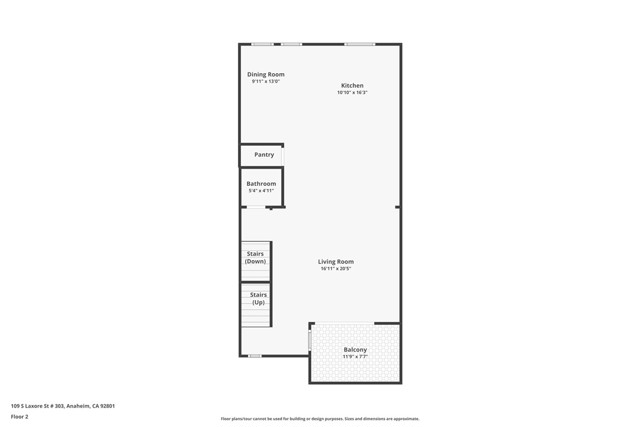
Introducing a stunning New Build 2025 condo featuring 4 bedrooms, 3.5 baths, and 2014 sqft of thoughtfully curated living space, complete with an attached 2-car garage. Crafted with a sophisticated blend of modern design and functional living, this home showcases a layout that elevates comfort, convenience, and everyday lifestyle. Upon entry, you’re welcomed by a flexible ground-floor suite—ideal for an office, guest room, or creative space. Upstairs, the main level features an expansive great family room that flows into a sleek, modern kitchen with quartz countertops, upgraded flooring, and selective owner upgrades that add a refined touch. Enjoy indoor-outdoor living at its finest with a second-story balcony, offering the ideal setting for morning coffee, evening relaxation, or intimate gatherings with friends and family. Flooded with natural light and designed for versatility, this beautifully upgraded home is move-in ready and embodies modern living at its best. HOA FEES HAVE BEEN PAID FOR 3 YEARS. PLEASE CHECK THE SUPPLEMENTS FOR THE FULL LIST OF UPGRADES.
MLS #
CRLG25271346
MLS Source
California Regional MLS
Days on Site
7
Bedrooms
Ground Floor Bedroom, Primary Suite/Retreat
Kitchen
Other
Appliances
Dishwasher, Microwave, Other, Oven - Electric, Dryer, Washer
Dining Room
Other
Family Room
Other
Fireplace
None
Laundry
In Closet
Cooling
Central Forced Air
Heating
Central Forced Air
Pool
None
Garage/Parking
Garage, Gate/Door Opener, Garage: 2 Car(s)
High School District
Anaheim Union High
HOA Fee
$338
HOA Fee Frequency
Monthly
Complex Amenities
Barbecue Area, Picnic Area, Playground
109 S Laxore St 303 is a Townhouse in Anaheim, CA 92804. This 2,014 square foot property sits on a – Sq Ft Lot and features 4 bedrooms & 3 full and 1 partial bathrooms. It is currently priced at $1,195,000 and was built in 2025. This address can also be written as 109 S Laxore St #303, Anaheim, CA 92804.
©2025 California Regional MLS. All rights reserved. All data, including all measurements and calculations of area, is obtained from various sources and has not been, and will not be, verified by broker or MLS. All information should be independently reviewed and verified for accuracy. Properties may or may not be listed by the office/agent presenting the information. Information provided is for personal, non-commercial use by the viewer and may not be redistributed without explicit authorization from California Regional MLS.
Presently MLSListings.com displays Active, Contingent, Pending, and Recently Sold listings. Recently Sold listings are properties which were sold within the last three years. After that period listings are no longer displayed in MLSListings.com. Pending listings are properties under contract and no longer available for sale. Contingent listings are properties where there is an accepted offer, and seller may be seeking back-up offers. Active listings are available for sale.
This listing information is up-to-date as of December 13, 2025. For the most current information, please contact Mohammad Noorzay, (949) 632-0407