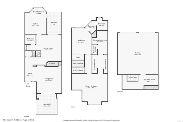
Located in the heart of UTC, this split-level townhome offers dual ensuite bedrooms, abundant natural light, and a warm, welcoming feel. Set in one of San Diego’s most convenient locations, the home combines a highly functional layout with a strong sense of comfort and community, just moments from shopping, dining, transit, and easy access across the city. The entry level welcomes you into an inviting living room anchored by a fireplace, creating a natural focal point for relaxing or gathering with guests. High ceilings and great light enhance the space, while the front patio extends the living area outdoors for morning coffee or quiet evenings at home. Above the living room, the split-level design opens to an elevated main living area that feels connected while still offering natural separation between spaces. This upper level enjoys a lofted perspective over the living room below, enhancing the home’s light, volume, and overall sense of openness. At its center is the dining room, which flows seamlessly into the recently upgraded kitchen with new cabinetry, stainless steel appliances, and an adjacent breakfast nook. The enclosed upper patio is easily accessed from both the nook and dining area, creating a flexible bonus space for indoor outdoor living. Upstairs, both bedrooms
MLS #
CRNDP2602807
MLS Source
California Regional MLS
Days on Site
5
Bedrooms
Primary Suite/Retreat, Other
Kitchen
Other
Appliances
Dishwasher, Freezer, Microwave, Other, Oven - Electric, Refrigerator
Dining Room
Breakfast Nook, Formal Dining Room
Fireplace
Living Room
Laundry
Other
Cooling
Ceiling Fan, None
Pool
Community Facility
Garage/Parking
Garage, Other, Garage: 2 Car(s)
Elementary District
San Diego Unified
High School District
San Diego Unified
HOA Fee
$624
HOA Fee Frequency
Monthly
Complex Amenities
Barbecue Area, Club House, Community Pool
Zoning
R1
Listing Agent
Farryl Moore
Coldwell Banker Realty
License #: 01395425
Phone: (858) 395-5813
Co-Listing Agent
Charles Moore
Coldwell Banker Realty
License #: 01488836
Phone: (858) 395-7525
4353 Nobel Dr 65 is a Townhouse in San Diego, CA 92122. This 1,766 square foot property sits on a – Sq Ft Lot and features 2 bedrooms & 2 full and 1 partial bathrooms. It is currently priced at $1,099,000 and was built in 1987. This address can also be written as 4353 Nobel Dr #65, San Diego, CA 92122.
©2026 California Regional MLS. All rights reserved. All data, including all measurements and calculations of area, is obtained from various sources and has not been, and will not be, verified by broker or MLS. All information should be independently reviewed and verified for accuracy. Properties may or may not be listed by the office/agent presenting the information. Information provided is for personal, non-commercial use by the viewer and may not be redistributed without explicit authorization from California Regional MLS.
Presently MLSListings.com displays Active, Contingent, Pending, and Recently Sold listings. Recently Sold listings are properties which were sold within the last three years. After that period listings are no longer displayed in MLSListings.com. Pending listings are properties under contract and no longer available for sale. Contingent listings are properties where there is an accepted offer, and seller may be seeking back-up offers. Active listings are available for sale.
This listing information is up-to-date as of March 30, 2026. For the most current information, please contact Farryl Moore, (858) 395-5813