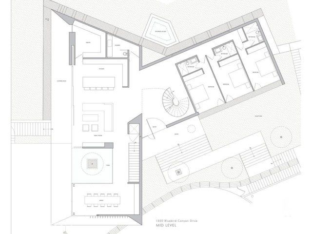
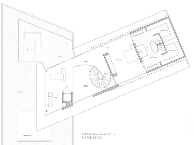
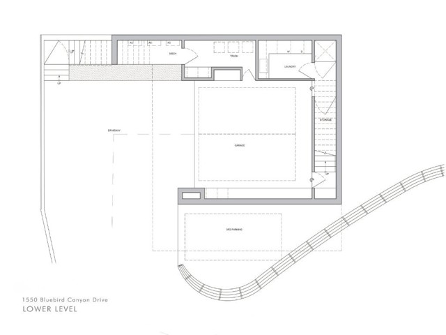
Introducing the largest permit-ready homesite currently available in coveted Bluebird Canyon, Laguna Beach. This exceptional coastal property is a legally established SB9-approved lot split, providing added certainty and protection regarding land use and subdivision rights. The offering includes a Design Review Board–approved set of architectural plans for a striking modern single-family residence, designed by Horst Architects, a renowned local firm known for thoughtful, site-responsive coastal design. The approved plans include approximately 4,393 square feet of living space, a 525-square-foot garage, and an elevated ocean-view deck. The expansive 12,363-square-foot lot captures panoramic views of the Pacific Ocean and Catalina Island from a quiet ridgeline setting between upper Bluebird Canyon and Morningside Drive. This offering is not raw land. It includes the permit-ready building plans and associated process management for a 4-bedroom, 4-1/2 bath residence with an office, expansive indoor-outdoor living areas, an integrated water feature, an in-ground spa, and a carefully considered arrival and circulation experience. The home’s design received the 2025 AIA National New Residential Design Award, underscoring the project's architectural quality and design integrity.
MLS #
CROC26028205
MLS Source
California Regional MLS
Days on Site
7
HOA Fee
$0
Zoning
LX
Listing Agent
Brandon Brown
BayBrook Realty
License #: 01394509
Phone: (949) 232-4044
Co-Listing Agent
Fred Zaharson
Westend Properties
License #: 01097353
Phone: (949) 584-1765
1550 Bluebird Canyon Dr is in Laguna Beach, CA 92651. This Land is currently priced at $3,688,000. This address can also be written as 1550 Bluebird Canyon Dr, Laguna Beach, CA 92651.
©2026 California Regional MLS. All rights reserved. All data, including all measurements and calculations of area, is obtained from various sources and has not been, and will not be, verified by broker or MLS. All information should be independently reviewed and verified for accuracy. Properties may or may not be listed by the office/agent presenting the information. Information provided is for personal, non-commercial use by the viewer and may not be redistributed without explicit authorization from California Regional MLS.
Presently MLSListings.com displays Active, Contingent, Pending, and Recently Sold listings. Recently Sold listings are properties which were sold within the last three years. After that period listings are no longer displayed in MLSListings.com. Pending listings are properties under contract and no longer available for sale. Contingent listings are properties where there is an accepted offer, and seller may be seeking back-up offers. Active listings are available for sale.
This listing information is up-to-date as of March 28, 2026. For the most current information, please contact Brandon Brown, (949) 232-4044