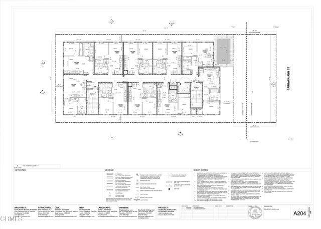
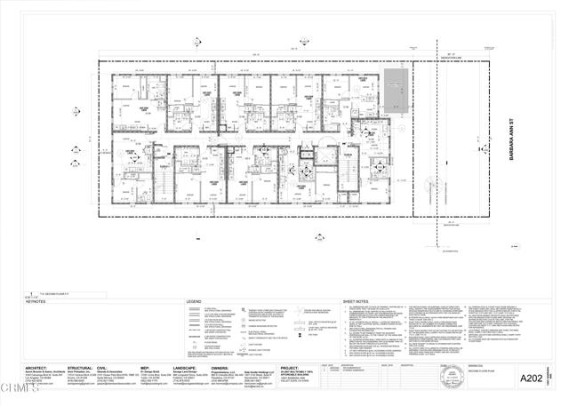
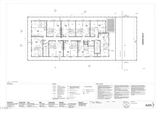
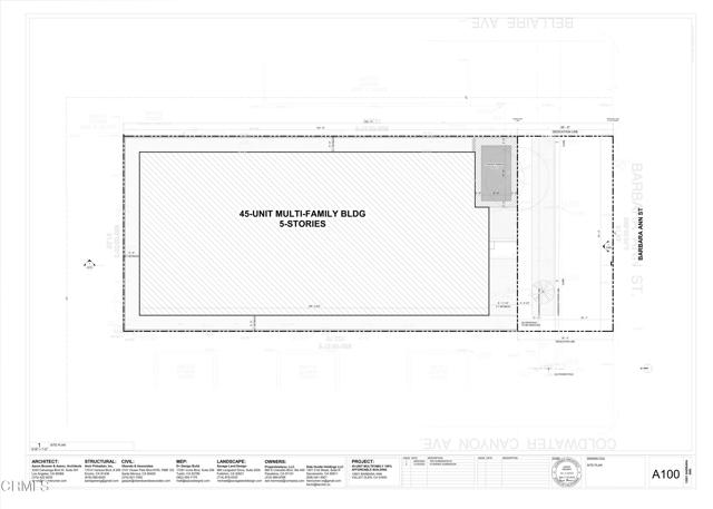
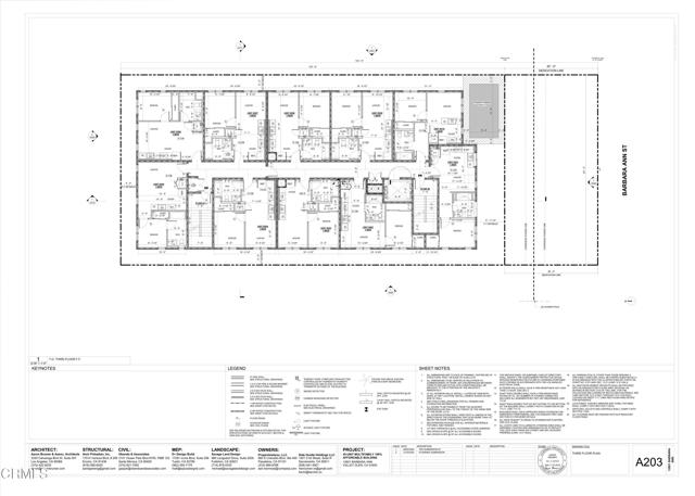
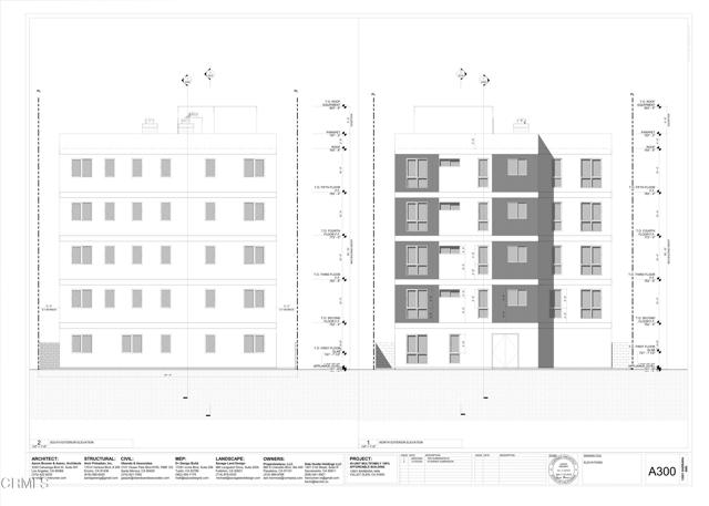
12801 Barbara Ann St, Valley Glen, CA 91605New Affordable Housing Development Opportunity - To be sold with RTI PlansShovel-ready project in Valley Glen featuring 45 units:43 one-bedrooms1 studio1 three-bedroom replacement unitRTI plans and covenant available upon request. Site also offers potential for two future ADUs.A rare chance to acquire a fully entitled, ready-to-build affordable housing development in a strong rental market.
MLS #
CRP1-24429
MLS Source
California Regional MLS
Days on Site
76
Kitchen
None
Laundry
None
Cooling
None
Heating
No Heating
Pool
None
Garage/Parking
No Parking, Garage: 0 Car(s)
HOA Fee
$0
Listing Agent
Ashrif Hammad
COMPASS
License #: 01700230
Phone: (626) 298-3030
Co-Listing Agent
Michael Wu
COMPASS
License #: 01403896
Phone: –
| # Buildings | # Leased Units | # Total Units |
|---|---|---|
| 1 | – | – |
Address Is Not Disclosed is a Residential Income in North Hollywood, CA 91605. This – square foot property sits on a 9,481 Sq Ft Lot and features – bedrooms & – full bathrooms. It is currently priced at $1,299,000 and was built in 1939. This address can also be written as Address Is Not Disclosed, North Hollywood, CA 91605.
©2025 California Regional MLS. All rights reserved. All data, including all measurements and calculations of area, is obtained from various sources and has not been, and will not be, verified by broker or MLS. All information should be independently reviewed and verified for accuracy. Properties may or may not be listed by the office/agent presenting the information. Information provided is for personal, non-commercial use by the viewer and may not be redistributed without explicit authorization from California Regional MLS.
Presently MLSListings.com displays Active, Contingent, Pending, and Recently Sold listings. Recently Sold listings are properties which were sold within the last three years. After that period listings are no longer displayed in MLSListings.com. Pending listings are properties under contract and no longer available for sale. Contingent listings are properties where there is an accepted offer, and seller may be seeking back-up offers. Active listings are available for sale.
This listing information is up-to-date as of December 05, 2025. For the most current information, please contact Ashrif Hammad, (626) 298-3030