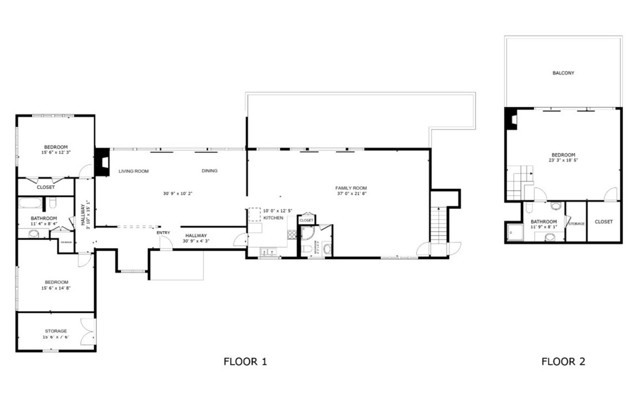
Tucked at the end of a private road, 1918 Chandos Lane offers sweeping Catalina, golf course, and rolling hills views in a peaceful rural setting with convenient access to Los Angeles and Orange County. Designed to maximize natural light and scenery, the home features an open floorplan with spacious rooms and every room oriented to capture the views. The kitchen is the heart of the home with abundant cabinetry, 36 inch wolf range, a large center island, and an open flow into the expansive family room that features custom built-ins. Double sliders extend the living space to over 800 sq ft of Trex decking, perfect for entertaining. A formal dining room connects seamlessly to the formal living room with a classic mid-century fireplace. Upstairs, the 600+ sq ft primary suite includes a balcony, gas fireplace, walk-in closet, and ensuite bathroom. The downstairs includes two updated bathrooms, two oversized secondary bedrooms (approx. 12’ x 15’ each), and a homework desk nook to complete the layout. A flexible bonus room with an outside double door entrance is ideal for a home office, gym, or storage, but is currently used as a game room. Plus, there is a separate laundry room and ample storage throughout the property. Recent upgrades include a new roof with 33 owned solar panel
MLS #
CRPW26019572
MLS Source
California Regional MLS
Days on Site
7
Bedrooms
Ground Floor Bedroom, Primary Suite/Retreat
Kitchen
Exhaust Fan, Other
Appliances
Built-in BBQ Grill, Dishwasher, Exhaust Fan, Hood Over Range, Other, Oven - Double, Oven Range - Gas, Water Softener
Dining Room
Breakfast Bar, Formal Dining Room, Other
Family Room
Other, Separate Family Room
Fireplace
Gas Burning, Living Room, Primary Bedroom, Other, Wood Burning
Flooring
Laminate, Other
Laundry
In Garage
Cooling
Ceiling Fan, Central Forced Air, Other
Heating
Central Forced Air, Heat Pump, Other
Roof
Composition
Pool
None
Style
Custom, Ranch
Horse Property
Yes
Garage/Parking
Garage, Gate/Door Opener, Other, RV Possible, Garage: 2 Car(s)
Sewer
Septic Tank
Water
Other
HOA Fee
$0
Zoning
LHRA1
1918 Chandos Ln is a Single Family Residence in La Habra Heights, CA 90631. This 2,762 square foot property sits on a 1.136 Acres Lot and features 3 bedrooms & 3 full bathrooms. It is currently priced at $1,598,000 and was built in 1952. This address can also be written as 1918 Chandos Ln, La Habra Heights, CA 90631.
©2026 California Regional MLS. All rights reserved. All data, including all measurements and calculations of area, is obtained from various sources and has not been, and will not be, verified by broker or MLS. All information should be independently reviewed and verified for accuracy. Properties may or may not be listed by the office/agent presenting the information. Information provided is for personal, non-commercial use by the viewer and may not be redistributed without explicit authorization from California Regional MLS.
Presently MLSListings.com displays Active, Contingent, Pending, and Recently Sold listings. Recently Sold listings are properties which were sold within the last three years. After that period listings are no longer displayed in MLSListings.com. Pending listings are properties under contract and no longer available for sale. Contingent listings are properties where there is an accepted offer, and seller may be seeking back-up offers. Active listings are available for sale.
This listing information is up-to-date as of February 04, 2026. For the most current information, please contact Thomas Higgins, (714) 878-7889