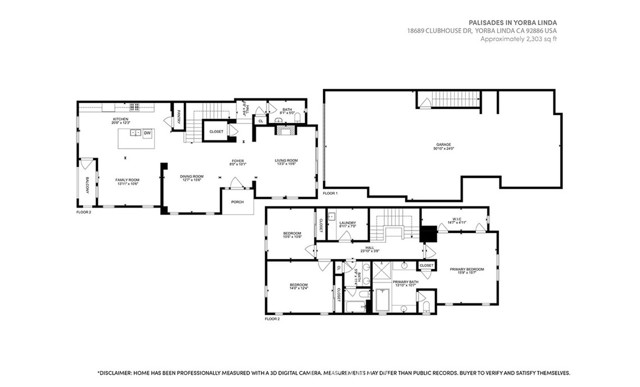
Tucked into the quiet hillside of Yorba Linda is the Palisades in Vista Del Verde, 18689 Clubhouse Drive offers the kind of everyday ease that makes Yorba Linda feel special. Mornings can start with a walk through quiet, well kept neighborhood lanes, then a quick stop at Black Gold Golf Club just up the road. Weekends can mean pool time, a spa soak, a workout at the community gym, or an easy afternoon at the playground while neighbors catch up. You will also be the talk of the town with the approximately 50' x 24' garage which could fit up to 6 cars. Yes. Up to six cars (four larger cars and a golf cart). Inside, this 2,303 square foot end-unit Taylor Morrison luxury townhome lives bright and open and includes peek-a-boo city light views. The gourmet kitchen anchors the main level with a grand center island, granite counters, a designer backsplash, 5 burner cooktop, and stainless steel appliances. The kitchen flows into the dining area and family room, where a cozy fireplace sets the tone for relaxed nights in. Step outside and you will love the privacy of your own backyard, this is a desirable end unit with low maintenance living in mind. There is also a sitting balcony off the kitchen, perfect for coffee, sunset views, or a quiet moment between errands. Upstairs, the prim
MLS #
CRPW26048237
MLS Source
California Regional MLS
Days on Site
10
Bedrooms
Primary Suite/Retreat, Other
Kitchen
Pantry
Appliances
Dishwasher, Garbage Disposal, Other, Oven Range - Gas
Dining Room
Breakfast Bar, Breakfast Nook, Formal Dining Room
Family Room
Other
Fireplace
Family Room
Laundry
In Laundry Room, Other
Cooling
Central Forced Air
Heating
Central Forced Air
Roof
Tile
Foundation
Slab
Pool
Community Facility, Spa - Community Facility
Style
Contemporary
Garage/Parking
Attached Garage, Garage, Gate/Door Opener, Garage: 6 Car(s)
Elementary District
Placentia-Yorba Linda Unified
High School District
Placentia-Yorba Linda Unified
HOA Fee
$482
HOA Fee Frequency
Monthly
Complex Amenities
Barbecue Area, Club House, Community Pool, Gym / Exercise Facility, Playground
Listing Agent
Raj Qsar
The Boutique Real Estate Group
License #: 01744847
Phone: –
Co-Listing Agent
Christina Boladian
The Boutique Real Estate Group
License #: 01948459
Phone: –
18689 Clubhouse is a Condominium in Yorba Linda, CA 92886. This 2,303 square foot property sits on a – Sq Ft Lot and features 3 bedrooms & 2 full and 1 partial bathrooms. It is currently priced at $1,325,000 and was built in 2013. This address can also be written as 18689 Clubhouse, Yorba Linda, CA 92886.
©2026 California Regional MLS. All rights reserved. All data, including all measurements and calculations of area, is obtained from various sources and has not been, and will not be, verified by broker or MLS. All information should be independently reviewed and verified for accuracy. Properties may or may not be listed by the office/agent presenting the information. Information provided is for personal, non-commercial use by the viewer and may not be redistributed without explicit authorization from California Regional MLS.
Presently MLSListings.com displays Active, Contingent, Pending, and Recently Sold listings. Recently Sold listings are properties which were sold within the last three years. After that period listings are no longer displayed in MLSListings.com. Pending listings are properties under contract and no longer available for sale. Contingent listings are properties where there is an accepted offer, and seller may be seeking back-up offers. Active listings are available for sale.
This listing information is up-to-date as of March 30, 2026. For the most current information, please contact Raj Qsar