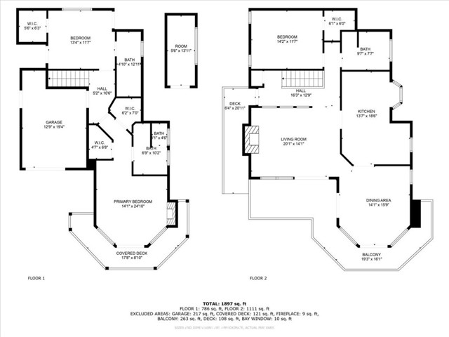
Situated in a premier Lodge Hill location, this elegant Colonial-style home offers sweeping views of the Pacific Ocean and refined living both inside and out. Featuring three bedrooms and three bathrooms, the home is thoughtfully updated and exudes timeless charm with modern conveniences. Hardwood floors run throughout all main living areas, while the bathrooms are finished with tile for a clean and polished look. The kitchen is a chef’s dream, fully upgraded with granite countertops, ample cabinetry including a built-in appliance garage, a six-burner cooktop, double oven, wine cooler, and a walk-in pantry. Recessed and ceiling-mounted lighting highlights the sleek, modern design, creating a bright and functional space. The dining area comfortably fits a large table and opens to a deck that showcases beautiful ocean views, perfect for dining al fresco. In the living room, built-in cabinets and shelving offer stylish storage and display options, while a gas fireplace adds warmth and ambiance. This space seamlessly flows out to the deck, extending the living area outdoors and capturing the natural beauty that surrounds the home. A full bathroom and one bedroom are also located on this level, providing flexibility for guests or. Downstairs, the en-suite guest bedroom has ac
MLS #
CRSC25252004
MLS Source
California Regional MLS
Days on Site
1
Bedrooms
Ground Floor Bedroom, Other
Kitchen
Other
Appliances
Dishwasher, Garbage Disposal, Microwave, Other, Oven - Double, Refrigerator, Dryer, Washer
Dining Room
Dining "L"
Fireplace
Gas Burning, Living Room, Primary Bedroom
Laundry
In Garage
Cooling
None
Heating
Forced Air, Gas
Foundation
Slab
Pool
None
Style
Colonial
Garage/Parking
Common Parking - Public, Garage, Garage: 1 Car(s)
Elementary District
Coast Unified
High School District
Coast Unified
HOA Fee
$0
Zoning
RSF
2180 Benson Ave is a Single Family Residence in Cambria, CA 93428. This 1,875 square foot property sits on a 3,485 Sq Ft Lot and features 3 bedrooms & 3 full bathrooms. It is currently priced at $1,350,000 and was built in 1982. This address can also be written as 2180 Benson Ave, Cambria, CA 93428.
©2025 California Regional MLS. All rights reserved. All data, including all measurements and calculations of area, is obtained from various sources and has not been, and will not be, verified by broker or MLS. All information should be independently reviewed and verified for accuracy. Properties may or may not be listed by the office/agent presenting the information. Information provided is for personal, non-commercial use by the viewer and may not be redistributed without explicit authorization from California Regional MLS.
Presently MLSListings.com displays Active, Contingent, Pending, and Recently Sold listings. Recently Sold listings are properties which were sold within the last three years. After that period listings are no longer displayed in MLSListings.com. Pending listings are properties under contract and no longer available for sale. Contingent listings are properties where there is an accepted offer, and seller may be seeking back-up offers. Active listings are available for sale.
This listing information is up-to-date as of November 03, 2025. For the most current information, please contact Joseph Prian, (805) 927-2474