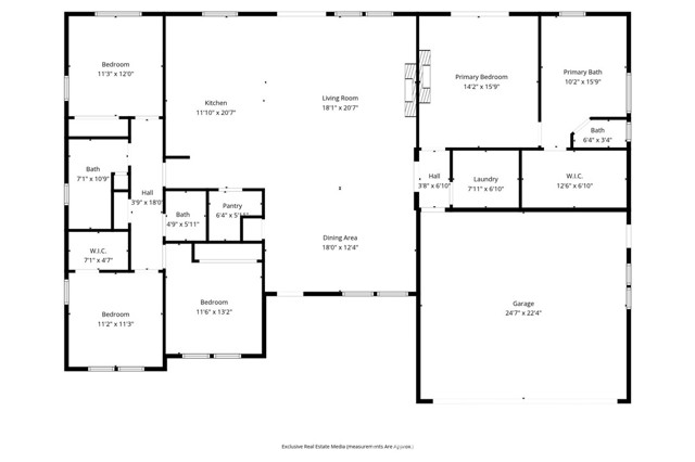
This brand-new, turnkey home offers modern craftsmanship and thoughtful design in one of Paradise’s most desirable neighborhoods, surrounded by custom homes with curbs, gutters, and sidewalks. The exterior features full front and rear landscaping with concrete border edging, shrubs, custom RV access gates, and a backyard with lawn, plantings, and rock perimeter offering flexible space for storage, future structures, or outdoor enjoyment. Inside, soaring vaulted ceilings and a striking tiled fireplace with built-in cabinetry anchor the open-concept living area, flowing into a spacious kitchen with white oak cabinetry, KitchenAid appliances, quartz countertops, tiled backsplash, and a walk-in pantry. The split-bedroom floor plan includes three secondary bedrooms, a hall bath, and a guest half bath, while the private primary suite features a fireplace accent, covered patio access, and a spa-inspired bathroom. Title 24–compliant solar is included, with installation intentionally deferred so the buyer can work directly with Urban Design Solar to customize or upgrade the system at contractor pricing, often saving thousands, making this a rare opportunity to own a stylish, efficient, and thoughtfully built new home in a true Ridge community setting.
MLS #
CRSN26022815
MLS Source
California Regional MLS
Days on Site
0
Bedrooms
Ground Floor Bedroom, Primary Suite/Retreat
Kitchen
Pantry
Appliances
Other
Fireplace
Electric, Living Room, Primary Bedroom
Laundry
In Laundry Room, Other
Cooling
Central Forced Air
Pool
None
Garage/Parking
Garage: 2 Car(s)
Elementary District
Paradise Unified
High School District
Paradise Unified
Sewer
Septic Tank
HOA Fee
$0
6277 Dawnridge Ct is a Single Family Residence in Paradise, CA 95969. This 2,225 square foot property sits on a 0.33 Acres Lot and features 4 bedrooms & 2 full and 1 partial bathrooms. It is currently priced at $665,000 and was built in 2026. This address can also be written as 6277 Dawnridge Ct, Paradise, CA 95969.
©2026 California Regional MLS. All rights reserved. All data, including all measurements and calculations of area, is obtained from various sources and has not been, and will not be, verified by broker or MLS. All information should be independently reviewed and verified for accuracy. Properties may or may not be listed by the office/agent presenting the information. Information provided is for personal, non-commercial use by the viewer and may not be redistributed without explicit authorization from California Regional MLS.
Presently MLSListings.com displays Active, Contingent, Pending, and Recently Sold listings. Recently Sold listings are properties which were sold within the last three years. After that period listings are no longer displayed in MLSListings.com. Pending listings are properties under contract and no longer available for sale. Contingent listings are properties where there is an accepted offer, and seller may be seeking back-up offers. Active listings are available for sale.
This listing information is up-to-date as of February 04, 2026. For the most current information, please contact Douglas Speicher