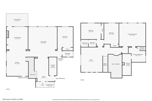
Welcome to 30923 LaJoe St, a beautifully refreshed and spacious home offering 4 bedrooms, 3 bathrooms, and 3,430 sq. ft. of well-designed living space on a 6,970 sq. ft. lot. This highly functional floor plan includes a desirable downstairs bedroom and full bathroom—perfect for guests or multigenerational living. Hard flooring flows throughout the entire home, complemented by fresh interior paint that gives the space a clean, modern feel. The generous loft provides flexible space ideal for a media room, home office, or play area. The massive laundry room is a standout feature, complete with abundant cabinetry and a sink for added convenience. Outside, enjoy a low-maintenance, hardscaped backyard with an Alumawood patio cover—perfect for relaxing or entertaining without the upkeep. Parking is a breeze with a three-car garage and an oversized driveway that can accommodate 4–5 additional vehicles. Additional highlights include a newer water heater and a solar lease for energy efficiency. Conveniently located near freeway access, shopping, and dining, this home offers both comfort and accessibility. A fantastic opportunity to own a move-in-ready property with space, functionality, and an unbeatable location.
MLS #
CRSW26025038
MLS Source
California Regional MLS
Days on Site
0
Bedrooms
Ground Floor Bedroom, Primary Suite/Retreat
Kitchen
Pantry
Appliances
Dishwasher, Microwave, Other, Oven - Double, Oven Range - Built-In, Oven Range - Gas
Family Room
Other, Separate Family Room
Fireplace
Dining Room
Flooring
Laminate
Laundry
Hookup - Gas Dryer, In Laundry Room, Other
Cooling
Ceiling Fan, Central Forced Air, Other
Heating
Central Forced Air
Roof
Tile
Pool
None
Garage/Parking
Attached Garage, Garage, Other, Garage: 3 Car(s)
High School District
Perris Union High
HOA Fee
$43
HOA Fee Frequency
Monthly
Listing Agent
Vanessa Rodarte
Localist Realty
License #: 01989824
Phone: (951) 294-1812
Co-Listing Agent
Tom Bashe
Localist Realty
License #: 01383456
Phone: (951) 491-5052
30923 Lajoe St is a Single Family Residence in Menifee, CA 92584. This 3,430 square foot property sits on a 6,970 Sq Ft Lot and features 4 bedrooms & 3 full bathrooms. It is currently priced at $699,999 and was built in 2002. This address can also be written as 30923 Lajoe St, Menifee, CA 92584.
©2026 California Regional MLS. All rights reserved. All data, including all measurements and calculations of area, is obtained from various sources and has not been, and will not be, verified by broker or MLS. All information should be independently reviewed and verified for accuracy. Properties may or may not be listed by the office/agent presenting the information. Information provided is for personal, non-commercial use by the viewer and may not be redistributed without explicit authorization from California Regional MLS.
Presently MLSListings.com displays Active, Contingent, Pending, and Recently Sold listings. Recently Sold listings are properties which were sold within the last three years. After that period listings are no longer displayed in MLSListings.com. Pending listings are properties under contract and no longer available for sale. Contingent listings are properties where there is an accepted offer, and seller may be seeking back-up offers. Active listings are available for sale.
This listing information is up-to-date as of February 03, 2026. For the most current information, please contact Vanessa Rodarte, (951) 294-1812