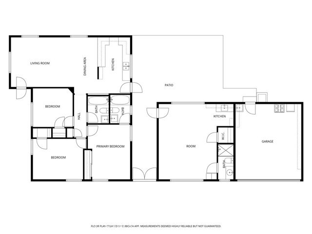
Single-Story Home with Bonus Studio for sale! A charming single-story home located on a tree-lined street in one of Monterey Park’s most convenient neighborhoods. The main house offers 3 bedrooms and 2 full bathrooms, a primary suite with its own ensuite bath. The floor plan is comfortable and functional, making it easy to enjoy day-to-day living. A separate permitted rumpus room with its own kitchen area and bathroom adds flexibility — ideal for a guest suite, studio, or potential rental. The property has a 2-car garage that offers an opportunity for additional ADU living space. Newly added in 2025 are a new roof, central AC, wood flooring, recessed lighting and garage door. Nearby, you’ll find everyday conveniences such as grocery shopping, restaurants, and services at Atlantic Square and Prado Center, all within walking distance. Enjoy quick access to the 60 Freeway, making commutes across the San Gabriel Valley and into Downtown Los Angeles a breeze. If you’re looking for a versatile property in a well-located neighborhood, 501 W Floral Dr is a fantastic opportunity.
MLS #
CRWS25250075
MLS Source
California Regional MLS
Days on Site
4
Bedrooms
Ground Floor Bedroom, Primary Suite/Retreat
Dining Room
Other
Fireplace
None
Flooring
Laminate
Laundry
Hookup - Gas Dryer
Cooling
Central Forced Air, Central Forced Air - Gas
Heating
Central Forced Air, Heat Pump
Roof
Composition, Shingle
Foundation
Raised, Slab
Pool
None
Style
Ranch
Garage/Parking
Garage, Garage: 2 Car(s)
Elementary District
Montebello Unified
High School District
Montebello Unified
HOA Fee
$0
Listing Agent
JONATHAN HUA
MANREALTY.COM
License #: 01485938
Phone: –
Co-Listing Agent
Philip Chang
MANREALTY.COM
License #: 01870805
Phone: (626) 872-0608
501 W Floral Dr is a Single Family Residence in Monterey Park, CA 91754. This 1,336 square foot property sits on a 5,759 Sq Ft Lot and features 3 bedrooms & 3 full bathrooms. It is currently priced at $950,000 and was built in 1948. This address can also be written as 501 W Floral Dr, Monterey Park, CA 91754.
©2025 California Regional MLS. All rights reserved. All data, including all measurements and calculations of area, is obtained from various sources and has not been, and will not be, verified by broker or MLS. All information should be independently reviewed and verified for accuracy. Properties may or may not be listed by the office/agent presenting the information. Information provided is for personal, non-commercial use by the viewer and may not be redistributed without explicit authorization from California Regional MLS.
Presently MLSListings.com displays Active, Contingent, Pending, and Recently Sold listings. Recently Sold listings are properties which were sold within the last three years. After that period listings are no longer displayed in MLSListings.com. Pending listings are properties under contract and no longer available for sale. Contingent listings are properties where there is an accepted offer, and seller may be seeking back-up offers. Active listings are available for sale.
This listing information is up-to-date as of November 03, 2025. For the most current information, please contact JONATHAN HUA