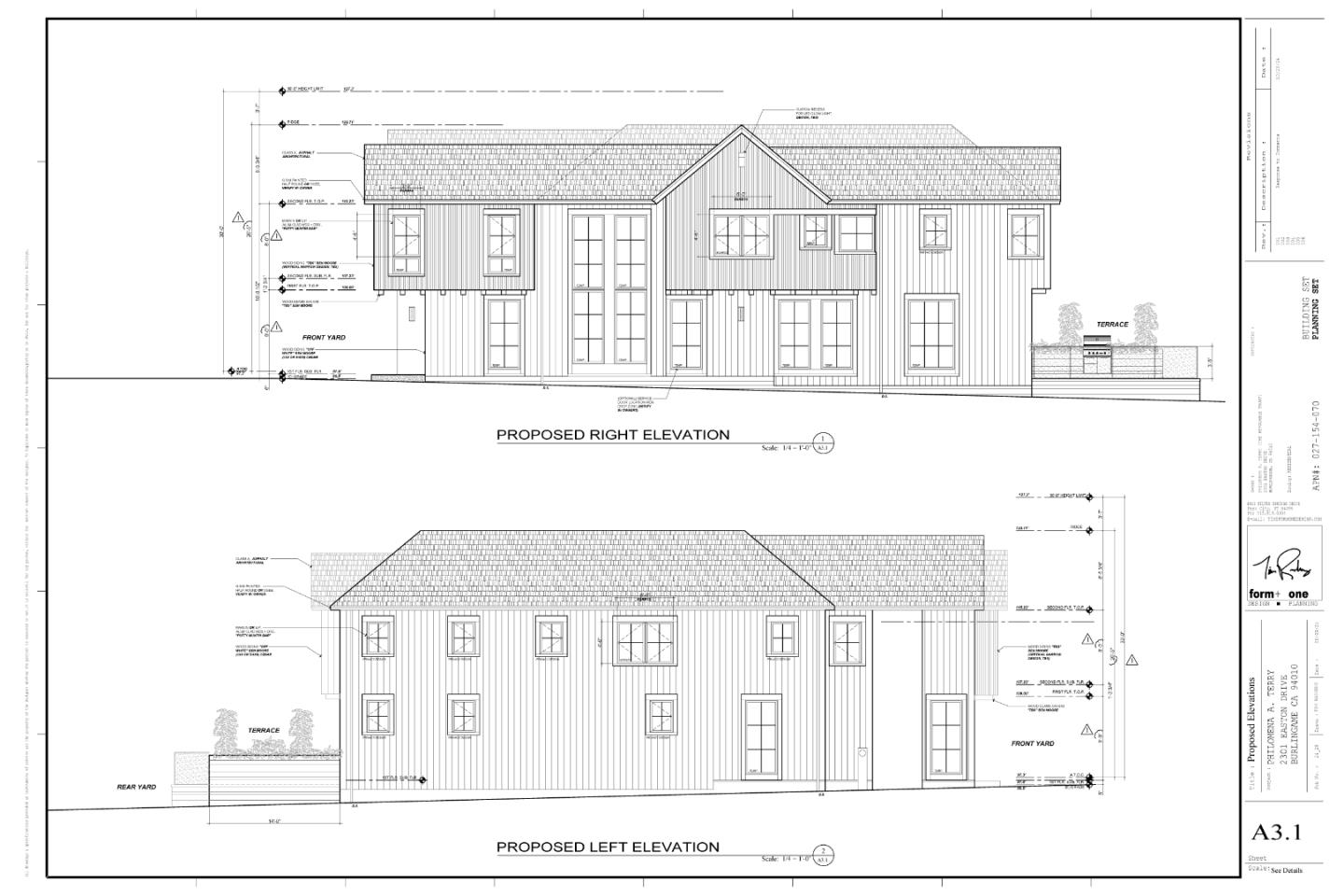
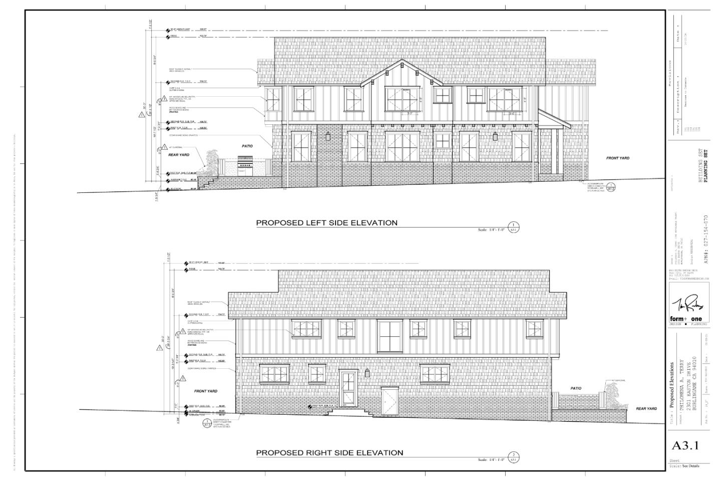
Unique Opportunity in Burlingame's Sought After Easton Addition! The famed Easton Addition is known for its pristine layout, gentle grades, serene landscape, play friendly & walk to anywhere. Presenting a unique opportunity to acquire a huge parcel with a prime Easton Addition Setting! Total Lot Size: ± 16,785 SqFt. Many options: Enjoy the home as-is or Renovate Existing Home or Build 2 New Homes. Existing home is 3 BRs, 4 BAs w/ huge kitchen/family room, formal dining room, formal living room, large primary suite, incl. ground floor bedroom, office/laundry room, large detached garage w/ full bathroom, changing room & loft/storage area, high ceilings, abundant natural light. A SB9 application has been completely approved by the City of Burlingame & is submitted for recording with the County of San Mateo. The lot split will provide two parcels: Lot A Proposed plans are for a ±2,851 SqFt Home + 307 SqFt Garage & 328 SqFt ADU Consisting of 4 BRs + den/office, 5-1/2 BAs, huge living-kitchen-family room environment, detached Garage w/ ADU. Lot B Proposed plans are for a ±3,484 SqFt Home + 310 SqFt Garage + 400 SqFt ADU, Consisting of 4 BRs + den/office, 5-1/2 BAs, huge living-kitchen-family room environment, detached garage w/ ADU.
MLS #
ML82022314
MLS Source
MLSListings, Inc.
Days on Site
86
Bedrooms
Ground Floor Bedroom, Primary Suite/Retreat, Walk-in Closet
Bathrooms
Shower over Tub - 1, Stall Shower, Full on Ground Floor
Kitchen
220 Volt Outlet, Countertop - Tile, Island, Pantry
Appliances
Cooktop - Gas, Dishwasher, Garbage Disposal, Hood Over Range, Oven - Built-In, Oven - Double, Oven - Electric, Refrigerator, Trash Compactor, Washer/Dryer
Dining Room
Breakfast Bar, Formal Dining Room
Family Room
Separate Family Room
Fireplace
Gas Starter, Insert, Living Room, Primary Bedroom, Wood Burning
Flooring
Carpet, Hardwood, Tile
Laundry
Inside
Cooling
Central Forced Air
Heating
Central Forced Air - Gas
Roof
Composition, Shingle
Foundation
Concrete Perimeter, Pillar/Post/Pier
Pool
Gunite, In Ground
Garage/Parking
Detached, Off-Street Parking, On Street, Garage: 2 Car(s)
Elementary District
Burlingame Elementary
High School District
San Mateo Union High
Sewer
Public Sewer
Water
Public
Zoning
R10000
2301 Easton Dr is a Single Family Residence in Burlingame, CA 94010. This 3,190 square foot property sits on a 0.385 Acres Lot and features 3 bedrooms & 4 full bathrooms. It is currently priced at $4,998,000 and was built in 1922. This address can also be written as 2301 Easton Dr, Burlingame, CA 94010.
©2025 MLSListings Inc. All rights reserved. All data, including all measurements and calculations of area, is obtained from various sources and has not been, and will not be, verified by broker or MLS. All information should be independently reviewed and verified for accuracy. Properties may or may not be listed by the office/agent presenting the information. Information provided is for personal, non-commercial use by the viewer and may not be redistributed without explicit authorization from MLSListings Inc.
Presently MLSListings.com displays Active, Contingent, Pending, and Recently Sold listings. Recently Sold listings are properties which were sold within the last three years. After that period listings are no longer displayed in MLSListings.com. Pending listings are properties under contract and no longer available for sale. Contingent listings are properties where there is an accepted offer, and seller may be seeking back-up offers. Active listings are available for sale.
This listing information is up-to-date as of October 25, 2025. For the most current information, please contact Gregory Terry, (650) 678-1110