Welcome to your newly remodeled haven in the heart of Silver Terrace! Bathed in sunshine, this charming single-family home boasting over 1,881 Sqft living space ( Tax Record shows 1,360 sqft), offers a bright and cheerful atmosphere that families will love. The top floor showcases lovely partial views of the bay and surrounding hills, bringing a touch of nature right into your living space. 3 bedrooms and 1 bathrooms, bonus rooms and den on the lower floor, perfect for growing families or guests. Step outside to a spacious backyard oasis, ideal for weekend barbecues, kids playtime, or peaceful mornings with coffee in hand. You will love the friendly neighborhood feel, with preschools, playgrounds, shops, and local restaurants all within walking distance. Plus, easy access to public transportation and highways 101 and 280 makes commuting a breeze. A wonderful place to grow, connect, and call home welcome to Silver Terrace living!
MLS #
ML82024077
MLS Source
MLSListings, Inc.
Days on Site
25
Appliances
Cooktop - Gas
Dining Room
Formal Dining Room
Family Room
Separate Family Room
Laundry
In Garage
Cooling
None
Heating
Central Forced Air - Gas
Roof
Shingle, Bitumen
Foundation
Concrete Perimeter
Garage/Parking
Attached Garage, Garage: 1 Car(s)
Elementary District
San Francisco Unified
High School District
San Francisco Unified
Sewer
Public Sewer
Zoning
RH1
Listing Agent
Carmen Tang
Compass
License #: 01974969
Phone: (415) 816-6881
Co-Listing Agent
Jenny Wang
Compass
License #: 02063767
Phone: (650) 288-6600
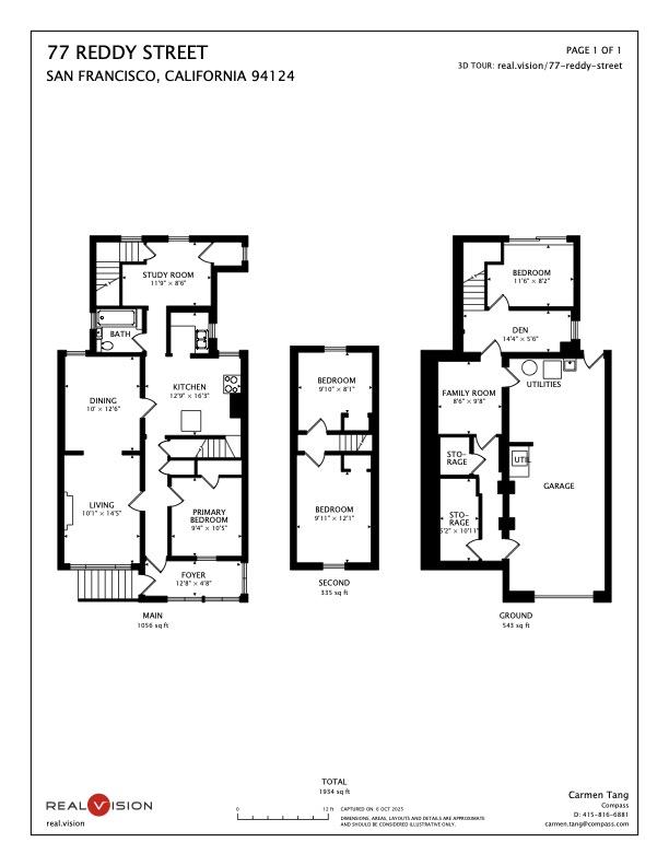
77 Reddy St is a Single Family Residence in San Francisco, CA 94124. This 1,881 square foot property sits on a 2,500 Sq Ft Lot and features 3 bedrooms & 1 full bathrooms. It is currently priced at $968,000 and was built in 1915. This address can also be written as 77 Reddy St, San Francisco, CA 94124.
©2025 MLSListings Inc. All rights reserved. All data, including all measurements and calculations of area, is obtained from various sources and has not been, and will not be, verified by broker or MLS. All information should be independently reviewed and verified for accuracy. Properties may or may not be listed by the office/agent presenting the information. Information provided is for personal, non-commercial use by the viewer and may not be redistributed without explicit authorization from MLSListings Inc.
Presently MLSListings.com displays Active, Contingent, Pending, and Recently Sold listings. Recently Sold listings are properties which were sold within the last three years. After that period listings are no longer displayed in MLSListings.com. Pending listings are properties under contract and no longer available for sale. Contingent listings are properties where there is an accepted offer, and seller may be seeking back-up offers. Active listings are available for sale.
This listing information is up-to-date as of November 03, 2025. For the most current information, please contact Carmen Tang, (415) 816-6881