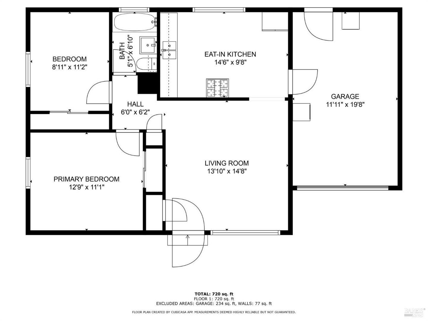
nvestment Opportunity in Southwest Santa Rosa - Duplex with Potential. Discover the possibilities with this duplex at 2721-2723 Victoria Drive in southwest Santa Rosa. Each unit features 2 bedrooms, 1 bathroom with a private yard and attached garage, ideal for owner-occupants or rental income. With long term tenants in place, Buyer can also purchase 2727-2729 Victoria which offers a blank canvas for updates and improvements to maximize value. Conveniently located close to shopping, schools, and commuter routes, it provides both accessibility and long-term upside on a huge 9,900 SqFt lot with room for possible further development and expansion. With strong rental demand in the area, this is a chance to customize and create equity while adding to your investment portfolio.
MLS #
ML82025660
MLS Source
MLSListings, Inc.
Days on Site
12
Cooling
None
Heating
Wall Furnace
Roof
Composition
Foundation
Concrete Perimeter
Garage/Parking
Attached Garage, Off-Street Parking, Garage: 2 Car(s)
Elementary District
Bellevue Union Elementary
High School District
Santa Rosa High
Sewer
Public Sewer
Water
Public
Zoning
RR2UA
| # Buildings | # Leased Units | # Total Units | 
|---|---|---|
| 1 | 2 | 2 | 
| Unit # | Sq Ft | Beds | Baths | Rent | 
|---|---|---|---|---|
| 1 | 750 | 2 | 1/0 | $1,342 | 
| 2 | 750 | 2 | 1/0 | $1,294 | 
2721 Victoria Dr is a Duplex in Santa Rosa, CA 95407. This 1,500 square foot property sits on a 9,900 Sq Ft Lot and features – bedrooms & – full bathrooms. It is currently priced at $595,000 and was built in 1960. This address can also be written as 2721 Victoria Dr, Santa Rosa, CA 95407.
©2025 MLSListings Inc. All rights reserved. All data, including all measurements and calculations of area, is obtained from various sources and has not been, and will not be, verified by broker or MLS. All information should be independently reviewed and verified for accuracy. Properties may or may not be listed by the office/agent presenting the information. Information provided is for personal, non-commercial use by the viewer and may not be redistributed without explicit authorization from MLSListings Inc.
Presently MLSListings.com displays Active, Contingent, Pending, and Recently Sold listings. Recently Sold listings are properties which were sold within the last three years. After that period listings are no longer displayed in MLSListings.com. Pending listings are properties under contract and no longer available for sale. Contingent listings are properties where there is an accepted offer, and seller may be seeking back-up offers. Active listings are available for sale.
This listing information is up-to-date as of October 23, 2025. For the most current information, please contact Michael Verdone, (650) 208-0669