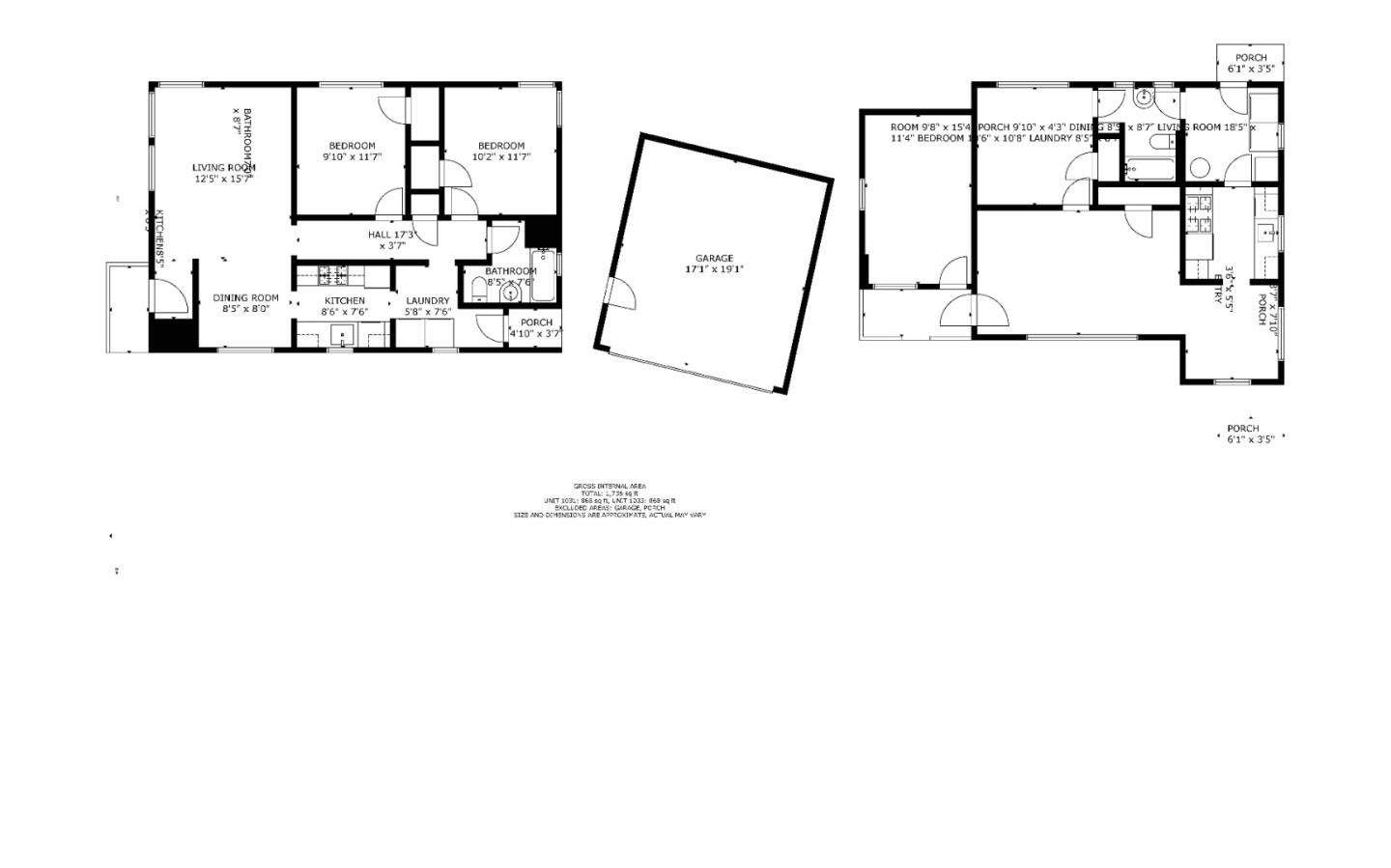
No supra box until 12/2. Please schedule showings after 12/2. Opportunity abounds on this more than 10,000-square-foot lot in sought-after Midtown. Residential single-family R1 zoning. Excellent Palo Alto schools. Two well-maintained existing cottages, each with its own address, private yard, and garage, create immediate options - continue with two separate rentals, live in one and rent the other, or plan entirely new construction with a luxury home and ADU. Opportunity to build for personal use or investment. A crisp white palette, updated kitchens, inside laundry, and classic charm enhance the existing cottages, making them desirable for rental income or personal use today. The location is superb just down the street from dog-friendly Greer Park, one block from acclaimed Ohlone Elementary School, and minutes to Highway 101 for easy access to all of Silicon Valley. This rare blend of space, versatility, and prime location makes this offering an exceptional opportunity for investment or future development.
MLS #
ML82026490
MLS Source
MLSListings, Inc.
Kitchen
Countertop - Solid Surface / Corian
Appliances
Dishwasher, Oven Range - Gas, Refrigerator, Washer/Dryer
Dining Room
Dining Area
Family Room
No Family Room
Flooring
Carpet, Hardwood, Other, Tile
Laundry
Inside
Cooling
None
Heating
Wall Furnace
Roof
Shingle
Foundation
Slab
Garage/Parking
Detached, Parking Area, Garage: 2 Car(s)
Elementary District
Palo Alto Unified
High School District
Palo Alto Unified
Sewer
Public Sewer
Water
Public
Zoning
R1
1031 Amarillo Ave is a Single Family Residence in Palo Alto, CA 94303. This 1,736 square foot property sits on a 10,661 Sq Ft Lot and features 4 bedrooms & 2 full bathrooms. It is currently priced at $3,488,000 and was built in 1947. This address can also be written as 1031 Amarillo Ave, Palo Alto, CA 94303.
©2025 MLSListings Inc. All rights reserved. All data, including all measurements and calculations of area, is obtained from various sources and has not been, and will not be, verified by broker or MLS. All information should be independently reviewed and verified for accuracy. Properties may or may not be listed by the office/agent presenting the information. Information provided is for personal, non-commercial use by the viewer and may not be redistributed without explicit authorization from MLSListings Inc.
Presently MLSListings.com displays Active, Contingent, Pending, and Recently Sold listings. Recently Sold listings are properties which were sold within the last three years. After that period listings are no longer displayed in MLSListings.com. Pending listings are properties under contract and no longer available for sale. Contingent listings are properties where there is an accepted offer, and seller may be seeking back-up offers. Active listings are available for sale.
This listing information is up-to-date as of December 17, 2025. For the most current information, please contact Annie Watson, (650) 380-9898