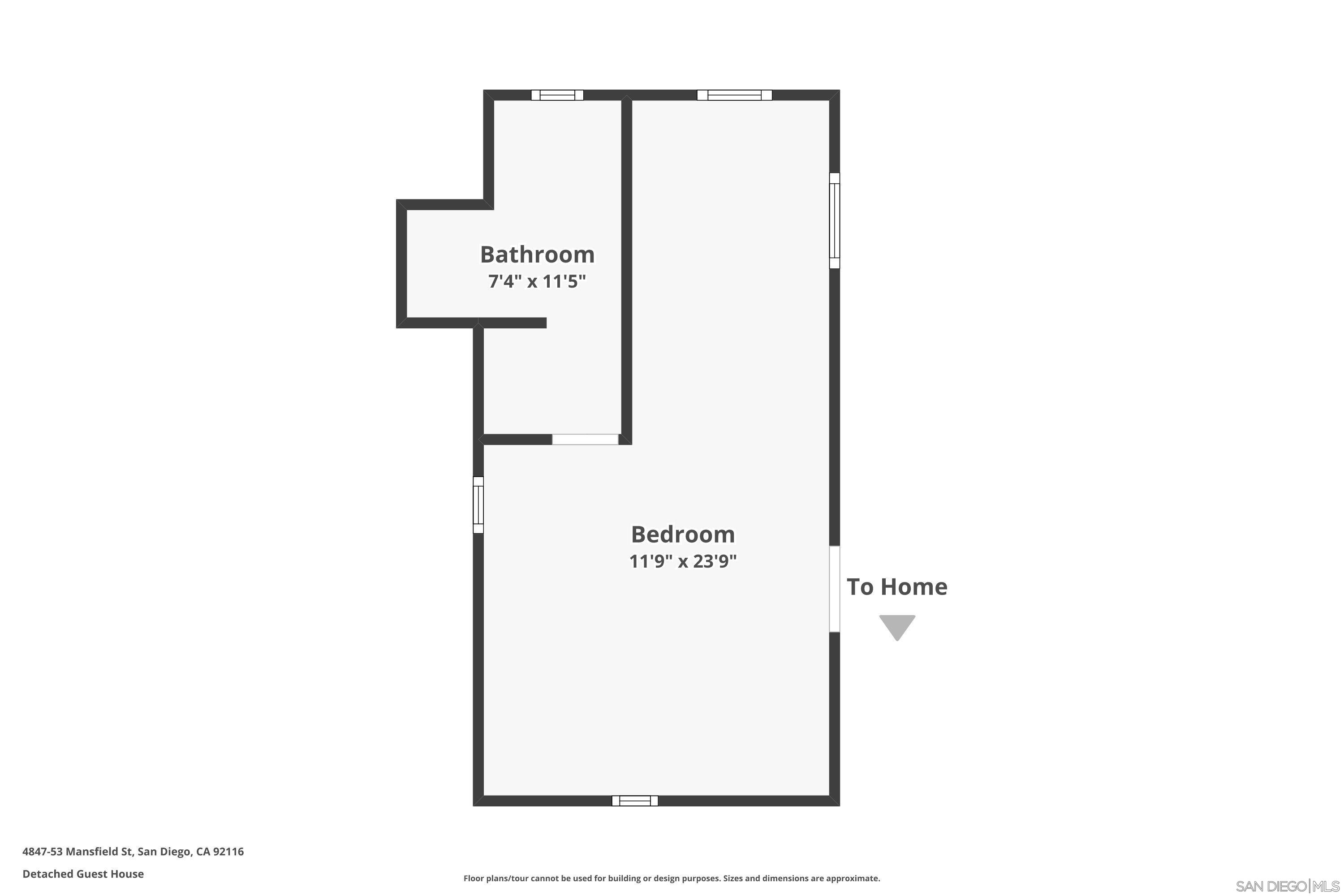
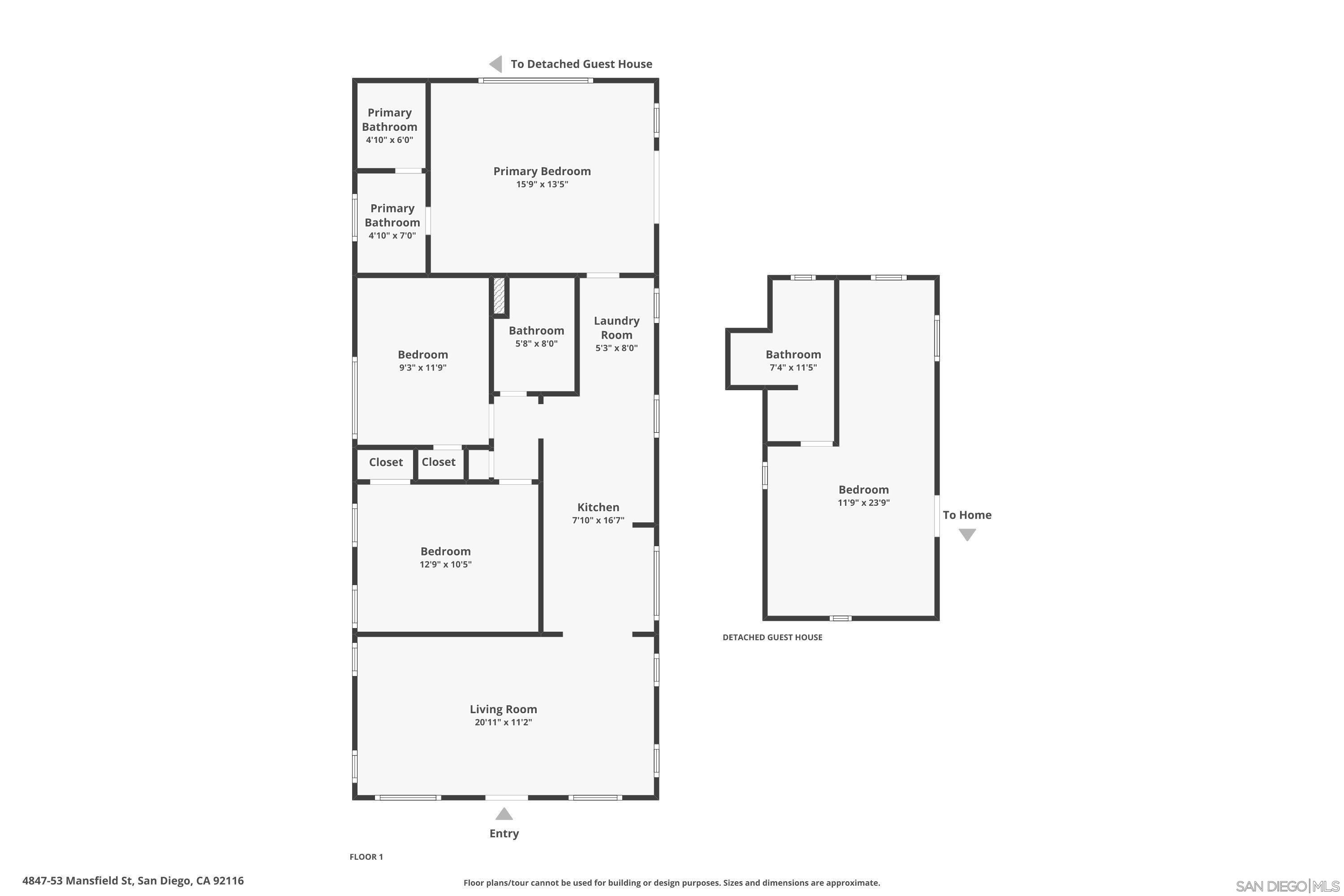
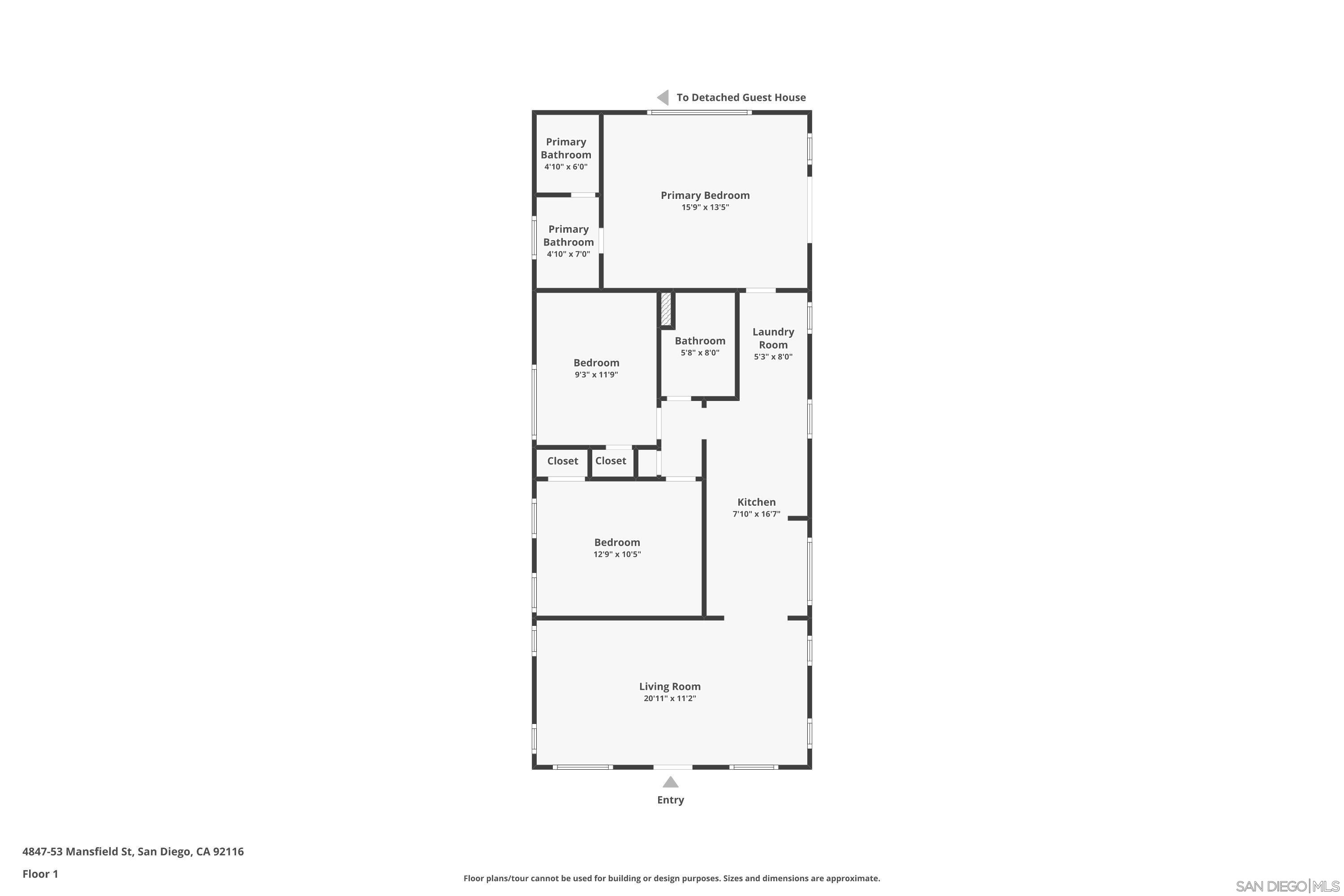
Turn-key and beautifully upgraded, this exceptional 4-unit investment opportunity in North Normal Heights offers the perfect blend of strong income, lifestyle flexibility, and long-term upside. Currently producing $129,900 per year in gross income, the property consists of four separate detached homes — a rare configuration that provides privacy, desirability, and premium tenant appeal. The front residence is a spacious 3-bedroom, 2-bath, approximately 1,200 SF home featuring in-unit laundry, off-street parking, and its own private yard, creating an ideal owner-occupant opportunity. Live comfortably in the front home while collecting approximately $80,760 annually from the three additional units, making this a compelling house-hack or portfolio addition. Each home is individually metered for gas and electric and offers dedicated off-street parking, while the rear three residences enjoy access to a thoughtfully landscaped shared backyard space. Extensive capital improvements provide peace of mind, including a new sewer line, updated plumbing, new foundations, and new roofs across all four units, with two of the homes completed as new construction in 2022. Situated in one of Metro San Diego’s most sought-after neighborhoods, the property offers unbeatable proximity to the vibrant s
MLS #
SD260006698
MLS Source
San Diego MLS
Days on Site
9
Cooling
Central Forced Air, Multi-Zone
Roof
Other, Rock
Garage/Parking
Assigned Spaces, Garage: Car(s)
| # Buildings | # Leased Units | # Total Units |
|---|---|---|
| 4 | – | 4 |
| Unit # | Sq Ft | Beds | Baths | Rent |
|---|---|---|---|---|
| 1 | 500 | 1 | 1/0 | $2,100 |
| 2 | 700 | 2 | 1/0 | $2,695 |
| 3 | 1,200 | 3 | 2/0 | $3,995 |
| 4 | 500 | 0 | 1/0 | $1,800 |
4847-53 Mansfield Street is a Residential Income in San Diego, CA 92116. This – square foot property sits on a 6,298 Sq Ft Lot and features – bedrooms & – full bathrooms. It is currently priced at $1,995,000 and was built in 1925. This address can also be written as 4847-53 Mansfield Street, San Diego, CA 92116.
©2026 San Diego MLS. All rights reserved. All data, including all measurements and calculations of area, is obtained from various sources and has not been, and will not be, verified by broker or MLS. All information should be independently reviewed and verified for accuracy. Properties may or may not be listed by the office/agent presenting the information. Information provided is for personal, non-commercial use by the viewer and may not be redistributed without explicit authorization from San Diego MLS.
Presently MLSListings.com displays Active, Contingent, Pending, and Recently Sold listings. Recently Sold listings are properties which were sold within the last three years. After that period listings are no longer displayed in MLSListings.com. Pending listings are properties under contract and no longer available for sale. Contingent listings are properties where there is an accepted offer, and seller may be seeking back-up offers. Active listings are available for sale.
This listing information is up-to-date as of March 21, 2026. For the most current information, please contact Patrick Mercer, (619) 846-2083