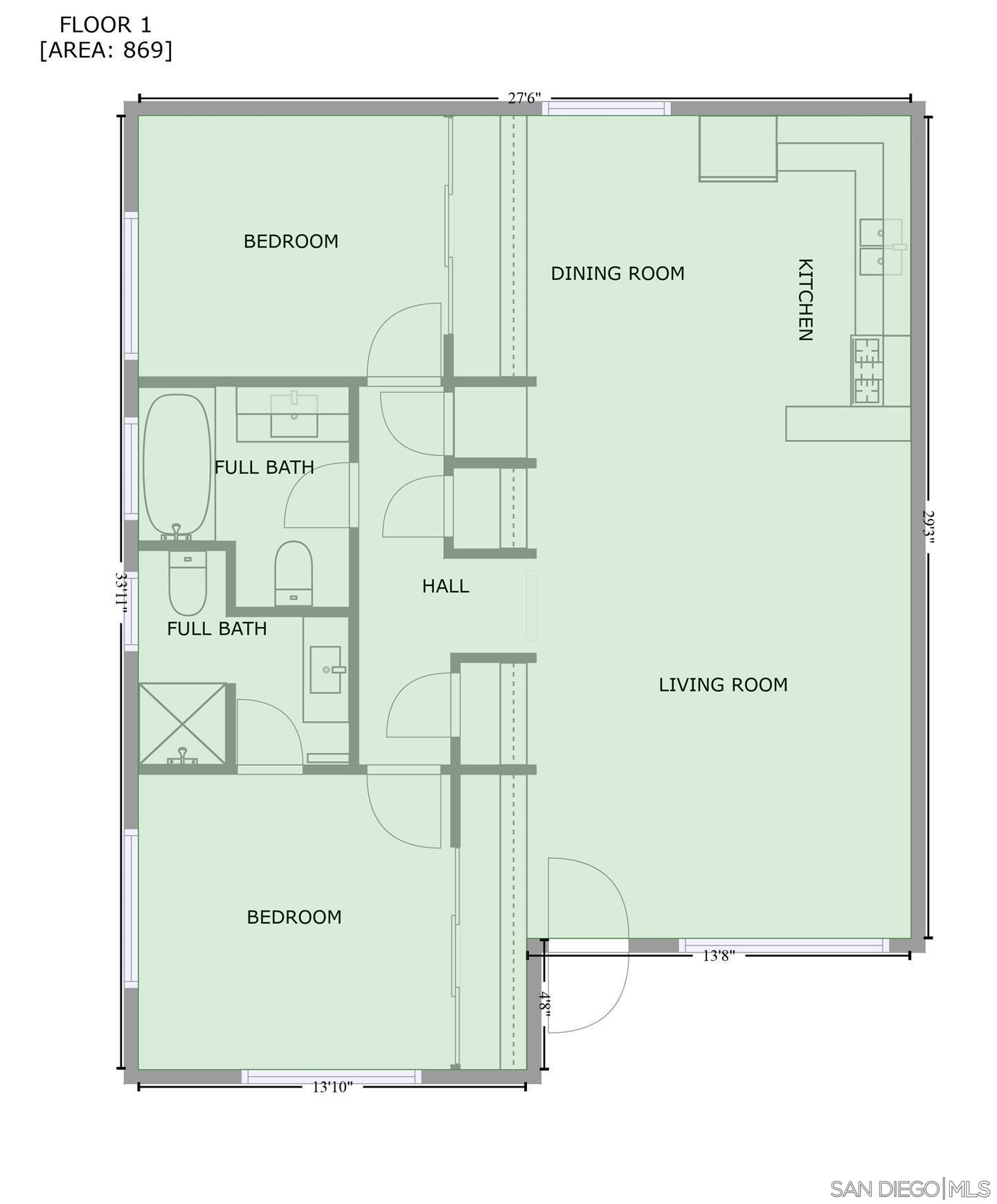
Updated fourplex for sale in Escondido featuring four spacious 2-bedroom, 2-bath units, each approximately 900 square feet. The property has undergone recent renovations, including luxury vinyl plank flooring and new windows, offering a modern, low-maintenance living environment for tenants. Ownership has also replaced all grass with astroturf, significantly reducing utility and landscaping costs—an attractive benefit for investors seeking stronger cash flow. Situated on a large corner lot, the property provides generous shared outdoor space for tenants. Additional amenities include reserved carport parking, ample street parking, and on-site coin-operated laundry facilities. Unit 1724 is currently vacant by design, presenting an excellent opportunity for an owner-occupant or to lease at market rent and maximize income potential.
MLS #
SD260006752
MLS Source
San Diego MLS
Days on Site
8
Laundry
Community Facility
Cooling
Other
Roof
Composition
HOA Fee
$0
| # Buildings | # Leased Units | # Total Units |
|---|---|---|
| 1 | – | 4 |
| Unit # | Sq Ft | Beds | Baths | Rent |
|---|---|---|---|---|
| 1 | 896 | 2 | 2/0 | $2,400 |
| 2 | 896 | 2 | 2/0 | $2,300 |
| 3 | 896 | 2 | 2/0 | $2,250 |
| 4 | 896 | 2 | 2/0 | – |
1718-24 Crofton Ln is a Residential Income in Escondido, CA 92027. This – square foot property sits on a 10,498 Sq Ft Lot and features – bedrooms & – full bathrooms. It is currently priced at $1,595,000 and was built in 1964. This address can also be written as 1718-24 Crofton Ln, Escondido, CA 92027.
©2026 San Diego MLS. All rights reserved. All data, including all measurements and calculations of area, is obtained from various sources and has not been, and will not be, verified by broker or MLS. All information should be independently reviewed and verified for accuracy. Properties may or may not be listed by the office/agent presenting the information. Information provided is for personal, non-commercial use by the viewer and may not be redistributed without explicit authorization from San Diego MLS.
Presently MLSListings.com displays Active, Contingent, Pending, and Recently Sold listings. Recently Sold listings are properties which were sold within the last three years. After that period listings are no longer displayed in MLSListings.com. Pending listings are properties under contract and no longer available for sale. Contingent listings are properties where there is an accepted offer, and seller may be seeking back-up offers. Active listings are available for sale.
This listing information is up-to-date as of March 25, 2026. For the most current information, please contact Kyle Carruthers, (949) 547-8088