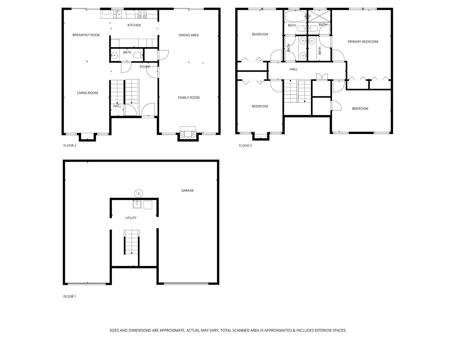
Rare value add opportunity in Diamond Heights. Perfect for both investors and owner occupiers with vision. Midcentury modern on quiet street with views of Glen Canyon Park. Southwest facing with great natural light. Mostly original finishes but very well kept with newer roof and mostly double-pane vinyl windows. High ceilings and scale throughout. Main level features spacious, open layout with 2 living rooms, fireplace, dining room, kitchen, half bath, and 2 sliding glass doors leading to back deck and lush terraced garden. All 4 bedrooms are on upper level featuring vaulted ceilings, large closets, an ensuite primary and a full guest bathroom. Opportunity to expand and create a 4 bed 4.5 bath, approx 2800 sq ft house for significant upside potential (buyer's to investigate to their satisfaction). Rare dual garages with 2 curb cuts and interior access. Moments from Glen Canyon Park's hiking trails and playgrounds, nearby Diamond Heights Shopping Center, and convenient access to Noe Valley, West Portal, and major commuter routes. A quiet neighborhood feel with city conveniences just minutes away this is a prime opportunity for developers and end users alike to reimagine a well-kept midcentury in one of San Francisco's most desirable hillside communities.
MLS #
SF425082368
MLS Source
San Francisco Association of Realtors® MLS
Days on Site
17
Fireplace
Wood Burning
Garage/Parking
Access - Interior, Facing Front, Gate/Door Opener, Other, Parking - Independent, Garage: 2 Car(s)
| # Buildings | # Leased Units | # Total Units | 
|---|---|---|
| 0 | – | – | 
49 Turquoise Way is a Single Family Residence in San Francisco, CA 94131. This 2,200 square foot property sits on a 2,840 Sq Ft Lot and features 4 bedrooms & 2 full and 1 partial bathrooms. It is currently priced at $1,535,000 and was built in 1963. This address can also be written as 49 Turquoise Way, San Francisco, CA 94131.
©2025 San Francisco Association of Realtors® MLS. All rights reserved. All data, including all measurements and calculations of area, is obtained from various sources and has not been, and will not be, verified by broker or MLS. All information should be independently reviewed and verified for accuracy. Properties may or may not be listed by the office/agent presenting the information. Information provided is for personal, non-commercial use by the viewer and may not be redistributed without explicit authorization from San Francisco Association of Realtors® MLS.
Presently MLSListings.com displays Active, Contingent, Pending, and Recently Sold listings. Recently Sold listings are properties which were sold within the last three years. After that period listings are no longer displayed in MLSListings.com. Pending listings are properties under contract and no longer available for sale. Contingent listings are properties where there is an accepted offer, and seller may be seeking back-up offers. Active listings are available for sale.
This listing information is up-to-date as of November 03, 2025. For the most current information, please contact Carter Waite, (415) 275-0229