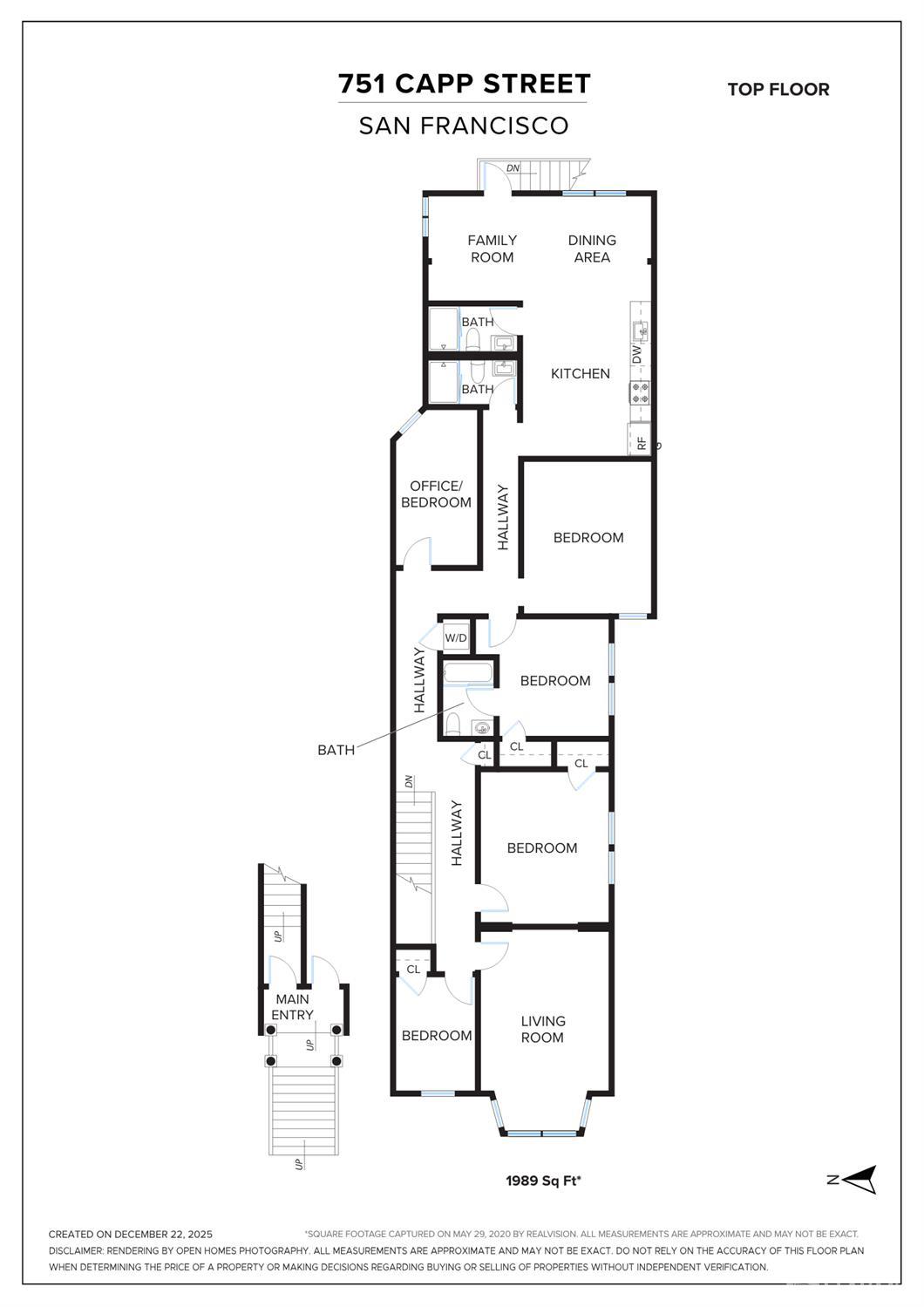
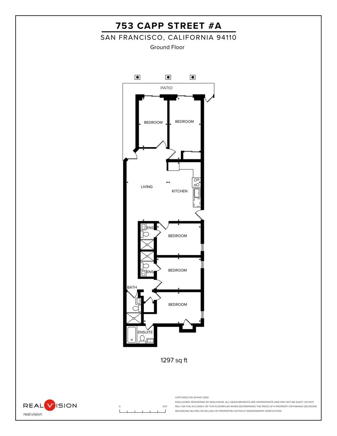
Transparently Priced Mission District Triplex | Exceptional Owner-Occupant, House-Hacking, or Investment Opportunity This is not your average income property. Transparently priced and rich with possibility, this renovated 3-unit Victorian offers a rare opportunity for an owner-occupant, savvy house-hacker, or investor in one of San Francisco's most vibrant neighborhoods. Live in the spectacular VACANT top floor unit and let rental income from the lower units help offset your mortgage, or add a standout asset to your portfolio with immediate income already in place. Behind its gorgeous Stick/Eastlake Victorian facade, the building blends timeless architectural charm with thoughtful modern updates, including renovated kitchens and bathrooms, updated systems, ethernet, and in-unit laundry. The top floor unit, delivered vacant, offers approximately 1,900 square feet of sun-filled living with 6 bedrooms, 3 bathrooms, soaring ceilings, skylights, and original stained glass bay windows. The middle unit (market rate tenant occupied) features approximately 1,750 square feet, 6 bedrooms, 3 bathrooms, bay windows, and lovely Victorian details. The garden unit, delivered vacant after April 30, offers approximately 1,300 square feet with 5 bedrooms and 4 bathrooms. The middle and garde
MLS #
SF426114432
MLS Source
San Francisco Association of Realtors® MLS
Days on Site
7
Appliances
Dishwasher, Garbage Disposal, Microwave, Oven Range - Gas, Refrigerator
Flooring
Laminate, Wood
Heating
Central Forced Air, Gas
Style
Victorian
Garage/Parking
Garage, Gate/Door Opener, Garage: 1 Car(s)
Sewer
Public Sewer
Water
Public
HOA Fee
$0
Zoning
RTO-M Residential Transit
| # Buildings | # Leased Units | # Total Units |
|---|---|---|
| 1 | 2 | 3 |
| Unit # | Sq Ft | Beds | Baths | Rent |
|---|---|---|---|---|
| 1 | 1,989 | 6 | 3/0 | – |
| 2 | 1,751 | 6 | 3/0 | $7,757 |
| 3 | 1,297 | 5 | 3/0 | $6,950 |
751 Capp St is a Triplex in San Francisco, CA 94110. This 5,500 square foot property sits on a 3,062 Sq Ft Lot and features – bedrooms & – full bathrooms. It is currently priced at $3,750,000 and was built in 1900. This address can also be written as 751 Capp St, San Francisco, CA 94110.
©2026 San Francisco Association of Realtors® MLS. All rights reserved. All data, including all measurements and calculations of area, is obtained from various sources and has not been, and will not be, verified by broker or MLS. All information should be independently reviewed and verified for accuracy. Properties may or may not be listed by the office/agent presenting the information. Information provided is for personal, non-commercial use by the viewer and may not be redistributed without explicit authorization from San Francisco Association of Realtors® MLS.
Presently MLSListings.com displays Active, Contingent, Pending, and Recently Sold listings. Recently Sold listings are properties which were sold within the last three years. After that period listings are no longer displayed in MLSListings.com. Pending listings are properties under contract and no longer available for sale. Contingent listings are properties where there is an accepted offer, and seller may be seeking back-up offers. Active listings are available for sale.
This listing information is up-to-date as of March 30, 2026. For the most current information, please contact Lisa Zahner, (415) 948-5747